1. Anlass
Mit der Vorlage VO/2022/11418 vom 31.08.2022 „Altstadtbrückenbericht und Bauprogramm bis 2037“ informierte der Bereich Stadtgrün und Verkehr die politischen Gremien über die geplanten Brückenbaumaßnahmen, insbesondere über die kurzfristig anstehenden Maßnahmen. Dazu gehört auch der Durchlass Brandenmühle. Mit einer Zustandsnote von 4,0 wird dem Bauwerk ein ungenügender Bauwerkszustand attestiert. Das bedeutet, eine umgehende Instandsetzung bzw. ein umgehender Ersatzneubau ist erforderlich, um die Standsicherheit, Dauerhaftigkeit und Verkehrssicherheit sicher zu stellen.

Auszug aus Geoportal Hansestadt Lübeck
Der Durchlass Brandenmühle liegt im Zuge des Oberbüssauer Wegs am Übergang zur Straße Eckbusch und unterführt einen Gewässerzulauf aus der Grienau in die Teiche die in einem Nebenlauf des Gewässers liegen. Im Gewässerlauf der Grienau oberhalb, vor dem ehemaligen Wehr der früheren „Brandenmühle“ war im Bestand ein weiteres Wehr mit Überfallkante und regelbarem Schütz eingerichtet. Diese Wehr diente dem geregelten Zulauf zu den Teichen. Der unmittelbar anschließende Durchlass mit einer lichten Breite von ca. 0,80 m und einer lichten Höhe unter dem Scheitel von ca. 1,20 m führt unter der Straße mit einer Überschüttung von ca. 1,80 m hindurch zum gegenüberliegenden Teich.
Bei der Bauwerksart handelt es sich um eine Gewölbe- / Bogenbrücke ohne Aufbeton. Das Durchlassbauwerk ist eine Massivbaukonstruktion mit einem Zulaufbauwerk aus Beton, gemauerten Wänden und gemauertem Gewölbe darüber. Auf der Seite des Teiches quert eine Mauerwerkswand, deren Fundament auf Stahlträgern aufliegt, die hier statt des Gewölbes von Seitenwand zu Seitenwand spannen.

Abb. Ansicht von Vorn, Zulauf DL Brandenmühle

Abb. Innenansicht mit Trägern unter dem Wandfundament

Abb. Ansicht gerissenes Mauerwerk unter Verkehrsweg
Das Bauwerk weist erhebliche Schäden (Betonabplatzungen, Rissbildungen, korrodierende Bewehrung und Stahlträger mit Querschnittsminderung) an den Unterbauten und der Massivbaukonstruktion des Überbaus auf. Die Dauerhaftigkeit und somit auch die Standsicherheit und Verkehrssicherheit des Bauwerks sind nur noch kurzfristig gegeben.
Bedingt durch die Schäden an den Konstruktionsteilen ist die Traglast auf 4 t begrenzt. Dies entspricht nicht mehr den hier vorgesehenen Anforderungen, z. B. auch aus dem modernem landwirtschaftlichen Verkehr. Der LKW-Verkehr zur Versorgung oder für Rettungseinsätze sowie die Überfahrt der Landmaschinen müssen in der überwiegend ländlichen Umgebung mit landwirtschaftlicher Nutzung große Umwege in Kauf nehmen.
2. Beschreibung der erforderlichen Maßnahme
Im Ergebnis der regelmäßigen Prüfungen und laufenden Beobachtungen sowie der zuletzt am 04.10.2023 durchgeführten Sonderprüfungen des Bauwerkszustandes bleibt nur, die zwingende Notwendigkeit eines Ersatzneubaus festzustellen. Aufgrund des hohen Schädigungsgrades ist eine Reparatur von Bauwerksteilen technisch wirtschaftlich nicht mehr möglich.
Planung und Genehmigung
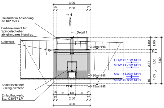
Es ist vorgesehen den bestehenden Durchlass mit zugehörigem Wehr, der gleichzeitig zur nebenliegende Wehranlage der Mühle vor ca. 100 Jahre errichtet wurde, durch einen Ersatzneubau inkl. Zulaufbauwerk, bestehend aus Absturz mit einem regelbarem Schütz vor einer neuen Stützwand zu ersetzen.
Dabei ist zunächst zu berücksichtigen, dass die Planung und der Bau des Ersatzneubaues der Straßenbrücke (BW 071) an der Brandenmühle, welcher zeitgleich zum Projekt der Baumaßnahme der Renaturierung der Grienau durch den Gewässerpflegeverband Grienau (GPV) zusammen mit dem Bereich Stadtgrün und Verkehr der Hansestadt Lübeck durchgeführt wird, mit dem Projekt der Erneuerung des Durchlasses (BW 197) an der Brandenmühle in Zusammenhang steht. Hierfür plante der GPV bereits seit einigen Jahren (> 10 Jahre) die Renaturierung der Grienau in diesem Bereich. Seit 2021 beteiligt sich die Hansestadt Lübeck an den Planungen für eine gemeinsame Maßnahme, die derzeit umgesetzt wird. Die Maßnahme wird gem. Beschluss der Vorlage VO/2023/11862 vom 14.03.2023 durchgeführt. So wurde bei der Planung des Gewässerausbaues zur Renaturierung der Grienau auch die wasserbaulichen Sollabmessungen des zukünftigen Durchlasses ermittelt und bei der Plangenehmigung zur Renaturierung festgelegt.

Abb. Vorderansicht mit Absturz- und Trogbauwerk NEU
Auf Grundlage der Abstimmung der Planungen des Gewässerausbaues der Grienau mit der Unteren Wasserbehörde (UNW) gelten für die Auslegung des Durchlasses unter anderem folgende Vorgabe:
- Als Durchlass wurde ein 17,0 m langer Kreisdurchlass mit einem Durchmesser von 600 mm angesetzt. Die Einlaufsohle ist auf einer Höhe von +0,90 m NHN und die Auslaufsohle auf einer Höhe von +0,50 m NHN festgelegt worden.
Das Gewässersystem im Bereich der Brandenmühle wird nach Umsetzung aller Maßnahmen wie folgt aussehen:

Abb. Schema Gewässerausbau NEU
Mit den Vorgaben aus der Planungen zum Gewässerausbau und der Orientierung des Neubaus an der Bestandskonstruktion ist die Entwurfsplanung des neuen Bauwerks ohne größeren Aufwand abzuarbeiten. Im Ergebnis erfasst der Entwurf die Gesamtheit der neuen baulichen Anlagen und gibt einen Überblick über die notwendigen Baumaßnahmen für den Ersatzneubau des Durchlasses.

Abb. Draufsicht aus Bauwerksplan (Entwurfsplanung)
Für die Maßnahme ist eine wasserrechtliche Genehmigung gem. § 23 LWG erforderlich. Des Weiteren ist auch die Aufstellung eines landschaftspflegerischen Begleitplanes (LBP) und die Durchführung der zugehörigen Maßnahmen zur Kompensation der Eingriffe in den Naturraum erforderlich.
Da im Verlauf der Straße die Baustelle des Brückenbauwerkes BW71 Straßenbrücke Brandenmühle im August 2024 abgeschlossen wird, besteht Baufreiheit für die bauliche Durchführung der Erneuerung des Durchlassbauwerkes BW197 Durchlass Brandenmühle. Nicht zuletzt, da die Belastungen für die Anwohnenden und die Einschränkungen auf der Straße von Moisling über den Oberbüssauer Weg nach Niederbüssau so gering wie möglich gehalten werden sollen, ist die Umsetzung umittelbar im Anschluss in 2024 vorgesehen. Die Durchfahrt an der Engstelle an der Brandenmühle ist auf Grund des Zustandes des Durchlasses auf 4 t beschränkt. Besonders der Verkehr der Ver- und Entsorgungsbetriebe und der landwirtschaftliche Verkehr nach Niederbüssau hat große Umwege zu verkraften. Eine längere Einschränkung nach Aufhebung der Vollsperrung bei Fertigstellung der Brücke soll vermieden werden.
Baumaßnahmen
Zur Errichtung des neuen Durchlasses wird zunächst das Zulaufbauwerk neu aufgebaut. Der Standort des Baufeldes für den Neubau neben dem Bestand ermöglicht eine Herstellung ohne zunächst den Bestand abzubrechen. Danach wird das alte Wehr abgebrochen, so dass der Neubau des Wehres auch unter der Bedingung des Erhalts des Verkehrs über dem Durchlass durchgeführt werden kann.
Der Ablauf stellt sich wie folgt dar:
- Baustelleneinrichtung
- Herstellung eines Dammes zur Abschottung der Grienau
- Herstellung einer Absperrung des Bestandswehres gegen den Rücklauf des Teichwassers
- Errichtung des neuen Wehres aus Stahlbeton: Sohlplatte, Stützwand, Flügelwände und Überlaufwand mit Öffnung
- Einbau der technischen Ausrüstung: Spindelschieber, Spindelgestänge mit Führung und Bedienelement
- Herstellung der Gitterrostabdeckung und Aufbau der Geländer
- Einbau des 1. Teilabschnittes des Rohres
- Herstellung einer bauzeitlichen Beipassleitung zur Wasserversorgung der Teiche
- Abbruch des Bestandswehres
- Aushub der Baugrube
- Abbruch der Massivbauteile des Bestandsdurchlasses
- Einbau des 2. Teilabschnittes des Rohres
- Verfüllen der Baugrube
- Straßenbau
- Einbau der Böschungssicherung an beiden Ufern und Herstellung einer Böschungstreppe für die Wartung
- Rückbau der Baustelleneinrichtung
Um den Bestandsdurchlass abzubrechen, ist eine ca. 4,00 m tiefe geböschte Baugrube auszuheben. Darin wird das Rohr mit einer Nennweite von 600 mm in einem Kiesbett verlegt. Für die Baufreiheit zum Aushub der Baugrube bis zur Freigabe der Straße muss der Verkehr für einen Zeitraum von ca. drei bis fünf Wochen gesperrt werden. Zu dem Zeitpunkt ist die Brücke Brandenmühle fertiggestellt, so dass die Zuwegung von Oberbüssau kommend sichergestellt ist.
Die reine Bauzeit für die Baumaßnahmen beginnt nach dem Gremienlauf und der Freigabe der Mittel durch die Bürgerschaft am 26.09.2024.
Die Entwurfsphase wurde zum Ende Juni 2024 abgeschlossen und die Unterlagen, die durch den Objekt- und Tragwerksplaner erstellt werden, sowie die Planvorlagen des Landschaftspflegerischen Begleitplanes werden bei der Genehmigungsbehörde eingereicht.
Im Juli und August 2024 wird die Ausschreibung erarbeitet und das Vergabeverfahren begonnen. Planmäßig ist der Termin der Zuschlagserteilung für den Zeitraum zwischen dem 01.10.2024 und dem 10.10.2024 festgelegt.
Für die Baudurchführung wird eine Bauzeit von max. 5 Monaten vorgesehen. Das Zulaufbauwerk wird als kostenintensive Stahlbetonkonstruktion zuerst hergestellt. Der bestehende Durchlass wird zurückgebaut und der neue Durchlass, bestehend aus einem Betonrohr von 60 cm Durchmesser kann auch in der Schlechtwetterperiode innerhalb weniger Wochen verlegt werden.
Bauzeitliche Verkehrsführung
Während der Bauphase muss der Baustellenbereich für wenige Wochen voll gesperrt werden. Es wird eine Umleitung über Eckbusch nach Oberbüssau, Schleusenstraße durch Niederbüssau, die Kronsforder Landstraße, Malmöstraße und Geniner Dorfstraße eingerichtet. Die Verkehrsführung wurde über die Leitstelle Verkehrsflussmanagement abgestimmt und wird in die Baustellenkoordination einbezogen.
Die von der Baumaßnahme direkt betroffene Eigentümergemeinschaft ist über die Maßnahme informiert. Randbedingungen, wie z. B. Ersatzparkplätze und Erreichbarkeit der Grundstücke für die Anwohnenden sind, wie bei der derzeitigen Baumaßnahme auch durchgeführt, vorbesprochen und werden derzeit final abgestimmt.
3. Finanzierung
Für den Ersatzneubau wird mit einem Finanzbedarf von 850.000,- EUR (brutto) gerechnet.
Die Kostenschätzung für die Gesamtmaßnahme setzt sich wie folgt zusammen:
Bauleistungen Brückenbauwerk (brutto) | ca. 675.000,- EUR |
Ingenieurkosten insbesondere Bauüberwachung, Prüfingenieur, Gutachten wie LBP (brutto) | ca. 175.000,- EUR |
Finanzbedarf (brutto) Hansestadt Lübeck | ca. 850.000,- EUR |
Für die erforderlichen Mittel sind im investiven Haushalt 2024 insbesondere für die Ingenieurkosten 250.000,- EUR eingeplant. Davon wurden bisher Planungsmittel in Höhe von ca. 25.000,- EUR brutto ausgeschöpft. Die Planerstellung der Genehmigungs- und der Ausführungspläne folgen in den nächsten Monaten. Weitere Kosten sind der Bauüberwachung und der biologischen Baubegleitung zuzuordnen. Für die Bauleistungen waren in der Mittelfristplanung des Haushalts 2024 für das Haushaltsjahr 2025 investive Mittel von 600.000,- EUR eingestellt worden. Ein großer Teil dieser Ausgaben wird vorgezogen. Die nun bereits 2024 erforderlichen Mittel von 500.000,- EUR, können unterjährig aus dem Bereichsbudget zur Verfügung gestellt werden. Die Deckung des Finanzbedarfes von 750.000 EUR ist im Haushalt 2024 und anteilig in Höhe von 100.000,- EUR im Haushalt 2025 im PSK 541001.685.7852000 berücksichtigt.
Der Bereich Stadtgrün und Verkehr empfiehlt, die Projektfreigabe für den Ersatzneubau des Durchlasses Brandenmühle mit einem Projektvolumen von 850.000,- EUR (brutto) vorbehaltlich der Aufhebung des Sperrvermerkes zu beschließen.