Vorgeschichte der Planung, vorausgegangene Untersuchungen und Verfahren:
Der Knotenpunkt St.-Jürgen-Ring (B75), auf Höhe des Mönkhofer Wegs, liegt auf der wichtigen Verbindungsachse zwischen Innenstadt, der Technischen Hochschule Lübeck, Universität zu Lübeck, dem Bahnhaltepunkt St. Jürgen sowie dem Universitätsklinikum.
Die bestehende Querung dieser Kreuzung ist für den Fuß- und Radverkehr allein durch die bestehende Unterführung möglich. Die vorhandene Höhendifferenz ist baulich durch Treppenanlagen und steile Rampen zu überwinden. Die Lübecker Bürgerschaft stellte am 29.11.2018 fest, dass diese unterirdische Anlage zwar den Zielen der damaligen Verkehrsplanung entspreche, aber den heutigen Ansprüchen einer barrierefreien Straßenquerung nicht gerecht werde. Der Auftrag zum Umbau des Knotenpunktes mit ebenerdiger Querung über den St.-Jürgen-Ring wurde beschlossen. Hinsichtlich einer nachhaltigen Lösung wurden im Vorfeld technische Mittel zur Herstellung der Barrierefreiheit, wie Aufzugssysteme, aufgrund der Folgekosten (Betrieb, Unterhaltung, Reparatur usw.) verworfen.
Im Bestand ist die Kreuzung St.-Jürgen-Ring / Mönkhofer Weg ein verkehrszeichengeregelter Knotenpunkt. Die Herstellung einer ebenerdigen Querungsmöglichkeit erfordert aufgrund der vorhandenen Verkehrsstärken eine Signalisierung.
Mit der Planung der Maßnahme wurde im Jahr 2021 begonnen. Im Rahmen der Vorplanung wurden unter den vorgenannten Randbedingungen Varianten der Verkehrsführung des Radverkehrs, unter Berücksichtigung der Verkehrssicherheit, des Verkehrsablaufes sowie den räumlichen Gegebenheiten erstellt. Die Vorzugsvariante stellt dabei eine barrierefreie, übersichtliche und leistungsfähige Signalisierungsvariante dar, die die vorgenannten Ziele erreicht und die Verkehrssicherheit gewährleistet.
Beschreibung der Maßnahme:
Allgemeines
Die Querschnittsmaße der im Bereich zu überplanenden Kreuzung St.-Jürgen-Ring / Mönkhofer Weg ergeben sich aus:
- der gültigen Richtlinie RASt 06 und der ERA 2010 mit den darin enthaltenen empfohlenen Querschnitten für typische Entwurfssituationen, den Querschnittsangaben für die jeweiligen Bestandteile der Straße und den lichten Räumen für die unterschiedlichen Bemessungsfahrzeuge,
- der Örtlichkeit,
- den Eigentumsverhältnissen,
- der Funktionen an die Bereiche der Fahrbahn und den Nebenanlagen.
Die Einzelbestandteile der Planung sehen vor, die Verbindung der Quartiere nördlich und südlich der B75 für den Fuß- und Radverkehr bestandsnah zu verbessern. Der Fuß- und Radverkehr wird signalisiert über die Knotenarme der höhengleichen Querung geführt. Vom südlichen Mönkhofer Weg in den westlichen St.-Jürgen-Ring wird eine Linkseinbiegemöglichkeit für den Kfz-Verkehr geschaffen, um Durchgangsverkehre durch das angrenzende Wohngebiet im untergeordneten Straßennetz zu reduzieren.
Zur gesicherten Führung von blinden und sehbehinderten Menschen werden die geplanten Querungsstellen mit einem akustischen sowie taktilen Leitsystem ausgestattet. Die Funktion der bestehenden Unterführung bleibt bis zur Nutzungsgewöhnung der neuen Querungsmöglichkeit erhalten. Vor den Zugängen der Bestandsunterführung werden daher ebenfalls taktil erfassbare Hinweisgeber ergänzt.
Bushaltestellen müssen im beplanten Abschnitt nicht berücksichtigt werden.
An den jeweiligen Bauenden erfolgt die nahtlose Anbindung an den Bestand. Ein Grunderwerb ist für diese Maßnahme nicht notwendig.
Zufahrt St.-Jürgen-Ring West
Die Mittelinsel wird als Querungshilfe mit einer Breite von 2,50 m hergestellt, um das barrierefreie Queren zu ermöglichen. Westlich der Fußverkehrsquerung wird eine Mittelsteifenüberfahrt angelegt. Diese kann im Bedarfsfall zu Brückenmaßnahmen für die Verkehrsleitung geöffnet werden und ergänzt das Äquivalent auf der östlichen Wallbrechtstraße. Baubedingt erfolgt die Anpassung von Leuchtenstandorten.

Abbildung 1: Zufahrt St.-Jürgen-Ring West
Um den Radverkehr ins Sichtfeld des Kfz-Verkehrs zu führen, ist vorgesehen, die Radwege im Knotenpunktbereich über eine Rampe abzusenken. Die bessere Sichtbarkeit, durch die vorgezogene Aufstellung des Radverkehrs, erhöht die Verkehrssicherheit für Radfahrende. Die parallel zum St.-Jürgen-Ring verlaufenden Radfahrfurten sind 1,85 m breit. Die kreuzenden Radfahrfurten über den St.-Jürgen-Ring verfügen über eine Breite von 2,00 m und sind zur besseren Wahrnehmung teilweise markiert.
Die Führung des Radverkehrs aus dem St.-Jürgen-Ring West in Richtung Mönkhofer Weg Nord sowie aus dem St.-Jürgen-Ring Ost in den Mönkhofer Weg Süd erfolgt als indirektes Linksabbiegen über eine markierte Radaufstellfläche. Für das indirekte Abbiegen ist zusätzlich je ein Radsignal geplant.
Zufahrt St.-Jürgen-Ring Ost
Für die Umplanung der Radverkehrsanlagen ist eine leichte Reduzierung der Richtungsfahrbahn, von der Ratzeburger Allee kommend in Fahrtrichtung Westen, erforderlich. Die vorhandene Abbiegebeziehung in den Mönkhofer Weg Nord bleibt dabei erhalten. Die Umbaumaßnahmen beschränken sich auf den vorhandenen Knotenbereich, ohne Eingriff in das Brückenbauwerk oder die Rampenbereiche der Wallbrechtbrücke, und orientieren sich an dem Bestand.

Abbildung 2: Zufahrt St.-Jürgen-Ring Ost
Zufahrt Mönkhofer Weg Süd
Im Zuge der Maßnahme wird zusätzlich ein Linkseinbiegefahrstreifen aus dem Mönkhofer Weg (Süd) auf den St.-Jürgen-Ring hergestellt. Im Bestand ist derzeit ein Rechtsabbiegefahrstreifen angelegt. Zur Herstellung dieser Fahrbeziehung ist der Rückbau der vorhandenen Verkehrsinsel erforderlich. Für den Radverkehr ist die Markierung eines 1,50 m breiten Schutzstreifens, in Kombination mit einer vorgezogenen Haltelinie und aufgeweiteten Radaufstellfläche vorgesehen. Die Führung des direkt linksabbiegenden Rad- und Kfz-Verkehrs erfolgt durch Markierung im Knotenpunkt. Das Geradeausfahren ist nur dem Radverkehr gestattet (Abbildung 3).

Abbildung 3: Zufahrt Mönkhofer Weg Süd
Zufahrt Mönkhofer Weg Nord
In dieser Zufahrt ist für den Kfz-Verkehr weiterhin nur das Rechtseinbiegen zugelassen. In der Abfahrt Mönkhofer Weg Nord steht dem Kfz-Verkehr weiterhin ein 4,70 m breiter Fahrstreifen zur Verfügung. In der Zufahrt ist für den rechtabbiegenden Verkehr (Fahrtrichtung stadteinwärts) ein 3,0 m breiter Fahrstreifen vorgesehen.
Der Radverkehr soll zur konfliktfreien Führung und besseren Sichtbarkeit gegenüber dem rechts abbiegenden Kfz am Knotenpunkt, analog der Radverkehrsführung aus dem Mönkhofer Weg (Süd), durch eine teilweise angedeutete Markierung geradeaus auf Fahrbahnniveau in den Mönkhofer Weg Süd oder linksabbiegend in den St.-Jürgen-Ring Ost gelangen (Abbildung 4). Dadurch wird dem Radverkehr eine direkte Querung, ohne eine weitere Aufstellung zum Abbiegen im St.-Jürgen-Ring, ermöglicht. Entsprechend der Verkehrsführung im Mönkhofer Weg Süd, erhält der Radverkehr einen 1,5 m breiten Schutzstreifen sowie eine aufgeweitete Radaufstellfläche. Dem Fußverkehr stehen vor dem Zugang zur Unterführung ein mindestens 2,40 breiter Gehweg zur Verfügung. Durch einen möglichen Rückbau des Unterführungsbauwerks würde dem Fußverkehr zusätzliche Fläche zur Verfügung stehen.

Abbildung 4: Zufahrt Mönkhofer Weg Nord)
Signalisierung
Für die Maßnahme ist ein dreiphasiger Ablauf (Phase 1: Hauptrichtung St.-Jürgen-Ring, Phase 2: Nebenrichtung Mönkhofer Weg Nord über St.-Jürgen-Ring, Phase 3: Fußverkehr über St.-Jürgen-Ring und Verkehr aus Mönkhofer Weg Süd) vorgesehen. Auf Grundlage der Prognosebelastung, des erarbeiteten Phasenablaufs und der Zwischenzeiten wurden die Signalzeitenpläne erstellt. Daraus lässt sich gemäß „Handbuch für die Bemessung von Straßenverkehrsanlagen 2015“ eine Qualitätsstufe B für die Hauptrichtung und eine Qualitätsstufe C für die Nebenrichtung ableiten.
Die Signalisierung soll dabei soweit wie möglich unter Berücksichtigung einer Koordinierung mit dem Nachbarknoten erfolgen.
Fahrbahnbefestigung
Die Straße unterteilt sich in Fahrstreifen und Nebenanlagen bestehend aus Sicherheitstrennstreifen und gemeinsamen Rad-/Gehwegen.
Der St.-Jürgen-Ring (B75) hat eine Belastungsklasse Bk 32 aufgrund der vorliegenden Verkehrszahlen inklusive Schwerlastverkehr. Für die neu herzustellenden Bereiche wird ein Vollausbau der Straßenbefestigung in der Bk 32, gemäß der Richtlinie RStO 12, berücksichtigt.
Der Umbau der Kreuzung soll im Jahr 2024 erfolgen, Restarbeiten werden Anfang 2025 vervollständigt.

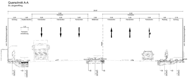
Abbildung 5: Querschnitt St.-Jürgen-Ring

Abbildung 6: Querschnitt Mönkhofer Weg (Zufahrt Nord)
Kosten / Finanzierung
Im Rahmen des Entwurfes wurde im April 2024 eine (Bau-) Kostenberechnung erarbeitet. Die ausgewiesenen Kosten enthalten die zum Zeitpunkt der Erstellung bekannten Baukosten von 757.000 EUR.
Für die Maßnahme wurde ein Bewilligungsantrag für Bundesmittel, gemäß der Verwaltungsvereinbarung Sonderprogramm „Stadt und Land“ und der Richtlinie des Landes Schleswig-Holstein, gestellt. Dieser wurde noch nicht bewilligt.
Anhand der Kostenberechnung wird um Projektfreigabe gebeten.
Sperrvermerk:
Für die Maßnahme soll der Sperrvermerk aufgehoben werden und gleichzeitig die eingestellten Mittel in Höhe von 860.000 EUR im Haushalt für die Baumaßnahme St.-Jürgen Ring/Mönkhofer Weg Querung (Produktsachkonto 544001 038.7852000) freigegeben werden. Diese beinhalten 757.000 EUR Baukosten sowie 103.000 EUR Planungskosten.
Zeitplan:
Die Ausschreibung der Baumaßnahme soll Mitte 2024 erfolgen. Die Baumaßnahme soll im Herbst 2024 beginnen.
Dringlichkeit:
Für die weitere Umsetzung des Projektes ist zwingend erforderlich, dass die Bürgerschaftssitzung am 27.06.2024 erreicht wird.