ALLRIS - Vorlage

Beschlussvorlage öffentlich - VO/2023/12408

Reduzieren

Beratungsfolge

Reduzieren

Beschlussvorschlag


Der Bürgermeister wird ermächtigt, das Projekt „BW 131 Geh- und Radwegbrücke Dornbrei-te Ersatzneubau“ mit voraussichtlichen Gesamtkosten von ca. 275.000 EUR (brutto) freizu-geben.


 

Reduzieren

 

 

Anlass

Mit der Vorlage VO/2022/11418 vom 31.08.2022 „Altstadtbrückenbericht und Bauprogramm bis 2037“ informierte der Bereich Stadtgrün und Verkehr die politischen Gremien über die geplanten Brückenbaumaßnahmen, insbesondere über die kurzfristig anstehenden Maßnahmen. Dazu gehört auch das BW 131 Geh- und Radwegbrücke Dornbreite. Mit einer Zustandsnote von 3,2 wird dem Bauwerk ein nicht ausreichender Bauwerkszustand attestiert.

Bauwerkszustand und geplante Maßnahmen

Die vorhandene Geh- und Radwegbrücke Dornbreite überführt einen Wanderweg über den Flutgraben in der Hansestadt Lübeck. Der überführte Wanderweg ist von Nord nach Süd ausgerichtet. Er verbindet in dem vorliegenden Streckenabschnitt den Ortsteil St. Lorenz Süd und die Wanderwege der Humboldtwiese.

 

Abb. 1: Lageplan (Quelle: Open Street Map)

 

Der Bestandsüberbau der Brücke besteht aus einer Holzkonstruktion mit einem Eichenbohlenbelag. Das Bauwerk liegt auf vier Stützen, bestehend aus mit Beton gefüllten Drainrohren sowie auf zwei flach gegründeten Holzwiderlagern. Das alte Holzgeländer wurde durch ein Rohrsteckgeländer ersetzt.

 

 

Abb. 2: Schadensbild Bohlenbelag (Quelle: HL, 5.660)

C:\Users\SchoelUl\AppData\Local\Microsoft\Windows\INetCache\Content.Word\IMG_20220830_121204.JPG

Abb. 3: Schadensbild Tragkonstruktion (Quelle: HL, 5.660)

Das Brückenbauwerk wurde im Jahr 1979 dem Verkehr übergeben und wird seitdem durch regelmäßige Bauwerksprüfungen nach DIN 1076 überwacht. Die Geh- und Radwegbrücke Dornbreite weist diverse Schäden in Bezug auf Verkehrssicherheit und Dauerhaftigkeit auf, welche sich in der Zustandsnote von 3,2 widerspiegeln.

So ist die Flachgründung der Holzwiderlager verrottet. Weiterhin sind die betongefüllten Drainrohre abgängig. Die Eichenlängstger und der Holzbohlenbelag sind stark ausgeprägt mit Pilz befallen. Zudem sind die Endquerträger des Fachwerkes verfault und weisen einen signifikanten Querschnittsverlust auf.

Eine Instandsetzung des nunmehr 44 Jahre alten Bauwerks (theoretische Nutzungsdauer von Holzbrücken dieser Bauart: 30 Jahre) ist aufgrund der vollständigen Schädigung der Gründungsbauteile und des Holzüberbaus technisch nicht mehr möglich. Ein Ersatzneubau der Brücke ist nunmehr erforderlich.

Der Querschnitt wird als Geh- und Radwegüberführung mit einer Fahrbahnbreite zwischen den Geländern von 2,50 m ausgebildet. Der Ersatzneubau der Geh- und Radwegbrücke wird als Einfeldträger aus Stahl mit GFKDeck und zwei tiefgegründeten Stahlbetonauflagerbalken geplant.

Diese Bauweise hat im Vergleich zur klassischen Brückenkonstruktion aus Holz den Vorteil, dass sie dauerhafter und auch unterhaltungsärmer ist. Die Nutzungsdauer für Brücken dieser Bauart kann bei regelmäßiger Unterhaltung mit mindestens 60 Jahren angesetzt werden.

Abb. 4: Beispielbild BW 103 G-R-Brücke Mori (baugleich zur geplanten G-R-Brücke Dornbreite)

Im Rahmen des nun anstehenden Ersatzneubaus des Bauwerks sind folgende Leistungen vorgesehen:

 

        Abbruch des Bestandsbauwerkes

        Gründung neuer Stahlbetonauflager

        Herstellung eines Stahlüberbaus mit GFK-Belag.

 

Termine/bauzeitliche Verkehrsführung

Die Durchführung der Baumaßnahme ist ab Februar 2024 bis Ende April 2024 geplant und wird in fünf Bauphasen realisiert:

 

Bauphase 1: Abbruch des alten Bauwerkes

Bauphase 2: Einbringen der Rammpfähle

Bauphase 3: Herstellen der Widerlager

Bauphase 4: Einhub der Stahlkonstruktion (Überbau) und Montage des GFK-Belags

Bauphase 5:  Herstellen des Geh- und Radweges

 

r die Dauer der Baumaßnahme muss die Brücke einschl. des Geh-/Radweges voll gesperrt werden. Eine Umleitung für Geh- und Radfahrende wird eingerichtet.

 

 

 

 

 

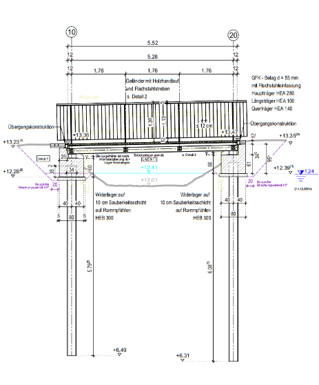
Abb. 5: Bauwerksübersichtsplan - Längsschnitt

Projektziel ist es, das Bauwerk zu erneuern, um die Geh- und Radwegverbindung zwischen dem Ortsteil St. Lorenz Süd und den beliebten Wanderwegen der Humboldtwiesen zu erhalten.

Die Ausschreibung der Baumaßnahme wird mit Zustimmung der Gremien am 13.09.2023 veröffentlicht.

Finanzierung

r den Ersatzneubau wird mit einem Finanzbedarf von 275.000 EUR (brutto) gerechnet. Die Kostenschätzung für die Gesamtmaßnahme setzt sich wie folgt zusammen:

 

Bauleistungen Brückenbauwerk (brutto)

ca. 255.000 EUR

Ingenieur:innenkosten, insbesondere Bauüberwachung, Prüfingenieur:in, Gutachten (brutto)

ca.   20.000 EUR

Finanzbedarf (brutto) Hansestadt Lübeck

ca. 275.000 EUR

 

Die erforderlichen Mittel waren im investiven Haushalt 2022/2023 im PSK 541001.760.7852000 berücksichtigt. Durch die Verschiebung in das Jahr 2024 stehen diese jedoch nicht mehr vollumfänglich zur Verfügung. Die Deckung wird aus dem Bereichsbudget (Minderausgaben einer anderen Maßnahme 2023) gewährleistet und die Mittelordnung erfolgt dann in 2024.

Der Bereich Stadtgrün und Verkehr empfiehlt, die Projektfreigabe für den Ersatzneubau der Geh- und Radwegbrücke Dornbreite mit einem Projektvolumen von 275.000 EUR (brutto) zu beschließen.


 

Reduzieren

Finanz. Auswirkung

 

Bereiche/Projektgruppen

Ergebnis

1.201 Haushalt und Steuerung

Zustimmung

3.390.01 Klimaleitstelle

Zustimmung

4.491 Archäologie und Denkmalpflege

Zustimmung

5.691 Lübeck Port Authority

Zustimmung

 

 

 

Beteiligung von Kindern und Jugendlichen

 

Ja

gem. § 47 f GO ist erfolgt:

X

Nein- Begründung:

r Kinder und Jugendliche ist der derzeitige Verfahrensstand nicht von Relevanz.

 

 

 

 

 

 

 

Die Maßnahme ist:

 

neu

 

 

freiwillig

 

X

vorgeschrieben durch: 

 

 

Verkehrssicherungspflicht der Hansestadt Lübeck gem. § 10 StrWG SH

 

 

 

Finanzielle Auswirkungen:

X

Ja (Anlage 1)

 

 

Nein

 

Auswirkung auf den Klimaschutz:

 

Nein

 

X

Ja Begründung:

 

 

Durch die Baumaßnahme entsteht zuchst ein zusätzlicher CO2 Ausstoß. Die Baumaßnahme ist notwendig, da das alte Bauwerk abgängig ist.

Die Maßnahme fördert den Geh- und Radverkehr.

 

 

 

Begründung der Nichtöffentlichkeit

gem. § 35 GO:

 

 

 

 

Reduzieren

Anlagen

Loading...

 

Das könnte Sie auch interessieren