1. Fahrradparken am Hauptbahnhof Lübeck
Der Neubau eines Fahrradparkdecks am Hauptbahnhof Lübeck ist im Konzept Fahrradfreundliches Lübeck von 2013 vorgesehen. Bis auf den Strandbahnhof gibt es an allen Bahnhaltepunkten im Stadtgebiet überdachte Bike+Ride-Anlagen. Ein Fahrradparkdeck wird am Hauptbahnhof dringend für ein fahrradfreundliches Lübeck, die Förderung der Intermodalität und somit für den Klimaschutz benötigt.
1.1 Bestand an Fahrradbügeln
Im nahen Umfeld des Bahnhofsvorplatzes befinden sich Fahrradbügel für ca. 550 Fahrräder im öffentlichen Straßenraum. Am Zugang zum Bahnhof am Steinrader Weg können auf der Fläche der DB AG nochmals ca. 100 Fahrräder in Fahrradmodulen der Hansestadt Lübeck geparkt werden. Diese Anlagen decken die Nachfrage nach Fahrradabstellmöglichkeiten bei weitem nicht ab, so dass viele Fahrräder an Fahnen-, Licht- oder Schildermasten angeschlossen werden und die Nutzung der Gehwege einschränken. Die Hansestadt Lübeck hat in den letzten Jahren mehrfach weitere Flächen im Bahnhofsumfeld aktiviert, um die Nachfrage durch das Bereitstellen von zusätzlichen Fahrradbügeln abzudecken.
Mit den ergriffenen Maßnahmen wird den Anforderungen der Bahnfahrgäste nach witterungsgeschützten und diebstahlsicheren Fahrradparkplätzen jedoch nicht entsprochen.
1.2 Bedarf an Fahrradabstellanlagen
Eine Befragung von Nutzer:innen der Fahrradabstellanlagen auf dem Bahnhofsvorplatz wurde am 10.03.2016 von 5.30 Uhr bis 20.30 Uhr durchgeführt. Von den 274 Befragten nutzen 64% die Fahrradabstellanlagen am Bahnhofsvorplatz täglich. Eine witterungsgeschützte und kameraüberwachte Abstellanlage würden 73% der Befragten (200 Personen) nutzen, wobei in Rahmen der Befragung auch nach Nutzungsgebühren gefragt wurde. 35% der Befragten gaben an, dass sie nur ein kostenloses Angebot nutzen würden.
Um den steigenden Bedarf an Fahrradabstellanlagen am Bahnhofsvorplatz zu decken und die Verknüpfung von Fahrrad und Bahn im Umweltverbund zu stärken, wird von einem Bedarf von insgesamt 1.000 Fahrradeinstellungen ausgegangen. Das Betreiben einer kostenpflichtigen Fahrradstation mit einer Kapazität unter 1.000 Stellplätzen ist erfahrungsgemäß nicht rentabel. Ein zukünftiges Betriebskonzept muss folglich auch die Finanzierungsmöglichkeiten aufzeigen. Sollte die Gegenfinanzierung nicht vollständig möglich sein, so muss die Hansestadt Lübeck ggf. den Verlust ausgleichen.
1.3 Anforderungsprofil an ein Fahrradparkhaus
- Abstellmöglichkeiten für ca. 1.000 Fahrräder (möglichst überdacht)
- Ebenerdige/r Zugang/ Zugänge
- Lage möglichst nah zum Haupteingang des Hauptbahnhofes
- freie Zugänglichkeit der Stellplätze (rund um die Uhr)
- einfache und schnelle Einstellung der Räder
- Maßnahmen gegen Diebstahl und Beschädigung der Räder
- Gewährleistung der sozialen Sicherheit
- evtl. Ergänzung um einen Servicebereich mit Werkstattbetrieb und Fahrradverleih (Konzept „Fahrrad-Station“)
2. Standortsuche für ein Fahrradparkhaus am Bahnhofsvorplatz (Bestandsaufnahme)
Schon lange wird an einem Fahrradparkhaus am Hauptbahnhof Lübeck geplant, für das der Hansestadt Lübeck keine eigenen Flächen zur Verfügung stehen. Bereits im Februar 1996 wurden im Bericht „Verbesserung des Radparkens am Lübecker Hauptbahnhof“ Standorte einer Fahrradstation für 300 Fahrräder diskutiert. Von 2000 bis 2002 konnten bei der Fahrradjugendwerkstatt „Leihcycle“ im ehemaligen Postgebäude Fahrräder geparkt werden, zusätzlich gab es ein „Rent-a-bike-Angebot“ bis das Postgebäude abgerissen und die Lindenarcaden gebaut wurden.
Folgende Standorte wurden darüber hinaus näher betrachtet:

Übersicht der geprüften Standorte für ein Fahrradparkdeck am Bahnhofsvorplatz und Steinrader Weg
(Grundlage: GIS, HL)
Standorte 1-3: Kellergeschosse von Handelshof, Bundespolizei und Empfangsgebäude/Ostflügel des Hauptbahnhofs
Als mögliche Standorte für ein Fahrradparkhaus wurden anhand von Begehungen und Grundrissplänen jeweils die Kellerräume von Handelshof (aktuell Hotel), Bundespolizei und Empfangsgebäude/Ostflügel des Hauptbahnhofs untersucht. Diese erwiesen sich für eine Nutzung zum Fahrradparken als ungeeignet, da sie stark verbaut sind und keinen ebenerdigen Zugang besitzen.
Standort 4: Tiefgarage unter dem Bahnhofsvorplatz
Unterschiedliche Varianten für ein Fahrradparkhaus unter dem Bahnhofsvorplatz als Tiefgarage mit den erforderlichen Rampen wurden aufgestellt. Die Varianten wurden aus Kostengründen nicht weiter verfolgt, da die Befahrbarkeit der Garagendecke für den Lieferverkehr gewährleistet sein muss und vorhandene Versorgungsleitungen aufwändig umgelegt werden müssen. Eine Tiefgarage hat darüber hinaus weitere Einschränkungen für die Nutzer:innen:
- höherer zeitlicher Bedarf für das Abstellen,
- möglicherweise neuer subjektiver „Angstraum“
- Barrierefreiheit
- Höhere Betriebskosten
Zudem würden die aktuell bestehenden ebenerdigen Abstellanlagen entfallen.
Standort 5: Grundstück Konrad-Adenauer-Straße 1/3
Es gab Gespräche mit einem Anbieter für ein automatisches Fahrradparkhaus, das auf dem Grundstück in der Konrad-Adenauer-Straße 1 (Apotheke) und 3 (Restaurant) geplant wurde. Das Grundstück befindet sich inzwischen nicht mehr im Eigentum der Hansestadt Lübeck.
Standort 6: Überdachte Fahrradabstellanlagen im Lindenpark
Überdachte Fahrradabstellanlagen im Lindenpark wurden skizziert. Das Konzept für die Stadteingänge der Hansestadt Lübeck sieht eine Aufwertung des Lindenparks als Grünanlage und Entrée der Stadt in Anlehnung an das historische Vorbild vor. Eine bauliche Nutzung widerspricht dem abgestimmten Stadteingangskonzept, der historischen Parkanlage und dem Klimaschutz.
Standort 7: Fahrradparkdeck Konrad-Adenauer-Straße (Überbauung der Kasematten)
Ab 2005 sollte der Bahnhofsvorplatz so umgestaltet werden, dass er frei von jeglichen Einbauten wie Fahrradbügeln ist. Ein Lübecker Architekturbüro erarbeitete Vorentwürfe für ein eingeschossiges Gebäude nördlich der Linden-Arkaden in der Konrad-Adenauer-Straße über den Kasematten der DB AG. Es gab mehrere Varianten eines Fahrradparkdecks mit 500 bis 620 Fahrradabstellplätzen mit Doppelstockparkern (Fahrradparken in zwei Ebenen), das kostenlos genutzt werden sollte. Die Baukosten beliefen sich auf ca. 1,7 Mio. Euro netto (Stand 2010). Hinzu kamen Anpassungen des Straßenraumes, so dass 14 bewirtschaftete Kfz-Parkplätze entfallen.
Die DB-seitigen Forderungen zur Nutzung ihres Grundstückes für ein Fahrradparkdeck waren:
- Nicht-Überbauung von Gleis 23 (ehem. Postgleis)
- Freie Zugänglichkeit der Kabeltrassen, ausreichender Abstand zum Oberleitungsdraht
- bauliche Absicherung des Parkdecks zu den Gleisanlagen
- kein gesonderter/direkter Zugang vom Parkdeck zum Personenstieg durch das Bahnhofsgebäude
- Freihalten von Ladeflächen vor dem Recycling-Hof
- Abschluss eines Gestattungsvertrags mit der DB-AG
- Übernahme der Kasematten durch die Hansestadt Lübeck
Der Entwurf des Fahrradparkdecks über den Kasematten wurde zuerst am 31.08.2010 im Runden Tisch Radverkehr und danach im Bauausschuss am 20.09.2010 vorgestellt. Der Bauausschuss lehnte die Varianten mehrheitlich wegen hoher Kosten in Höhe von 1,7 Mio. Euro brutto (Stand 2010, aktuell ca. 2,2 Mio. Euro) ab, insbesondere aufgrund der aufwändigen Unterkonstruktion als Ersatzneubau für die baulich maroden Kasematten der DB AG. Eine statische Ertüchtigung ihrer Kasematten konnte die DB AG aus Kostengründen nicht durchführen. Die Hansestadt Lübeck lehnte daher das Angebot der DB AG ab, die über 100 Jahre alten maroden Kasematten im vorhandenen Zustand zu übernehmen. Heute ist ein Teil des nördlichen Abschnitts der Konrad-Adenauer-Straße über den Kasematten auf Veranlassung der DB AG aus statischen Gründen gesperrt.
Bisher ist keine weitere Nutzung der Kasematten bekannt, so dass sie durch die DB AG möglichst zugeschüttet werden sollten. Dann müsste der Geländesprung zwischen Gleisebene und Straßenebene gesichert werden, z.B. durch eine Böschung über den nicht mehr benötigten Gleisen oder durch eine Stützwand in der Linie des jetzigen Geländers. Die Fläche auf der Straßenebene wäre dann für eine Überdachung von Fahrradbügeln nutzbar.

Standort 7: Visualisierung des Fahrradparkdecks Konrad-Adenauer-Straße (Architekturbüro Schünemann 2010)
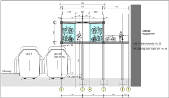
Standort 8: Fahrradparkdeck hinter dem Empfangsgebäude
Alternativ wurde eine Variante für ein Fahrradparkdeck auf dem Grundstück der DB AG erarbeitet, bei dem auf eine kostenaufwändige Konstruktion auf den Kasematten verzichtet wird. Diese Variante Fahrradparkdeck befindet sich zwischen dem Empfangsgebäude der Bahn und dem Bahnsteig 1 mit einer Überbauung des stillgelegten Gleises 24. Hierfür wurden mehrere Untervarianten entwickelt, die sich in der Unterkonstruktion und der Aufteilung des Fahrradparkdecks in einen überdachten und einen nicht überdachten Teil unterscheiden. Der Zugang zum Fahrradparkdeck erfolgt ebenerdig von der Konrad-Adenauer-Straße aus über eine Plattform. Die Bahnhofshalle wird über einen Zugang vom Fahrradparkdeck aus erreicht.
Durch die größere Nähe zur Personenbrücke des Bahnhofes und den geplanten direkten Zugang zur Bahnhofseingangshalle wird eine höhere Akzeptanz der Anlage erwartet. Mittelfristig ist die Ergänzung eines Fahrradserviceangebotes wünschenswert, die wesentliche Funktionen einer Fahrradstation übernehmen könnte.
Eine Beispielvariante sieht die Bereitstellung von 565 Fahrrad-Stellplätzen (344 überdachte Stellplätze in Doppelstockparkern, 100 nicht überdachte Stellplätze in Fahrradradparkmodulen und 121 nicht überdachte Stellplätze in Doppelstockparkern) vor.
Für diese Variante gab es Abstimmungen mit dem Bereich Denkmalschutz, da ein Fahrradparkdeck baulich vom denkmalgeschützten Bahnhofsgebäude abgerückt werden muss und der Erker am Bahnhofsgebäude nicht überbaut werden darf.
Die für den Standort 7 genannten DB-seitigen Forderungen bestehen größtenteils auch für diese Variante. Da sich das Bauwerk nahe am im Betrieb befindlichen Gleis 1 befindet, sind die entsprechenden Auflagen der DB AG einzuhalten.
Eine Schätzung der Gebäudekosten des Architekturbüros aus dem Jahr 2012 beläuft sich auf ca. 2,1 Mio. Euro brutto, aktuell ca. 2,6 Mio. Euro.

Standort 8: Ansicht der Variante Fahrradparkdeck hinter dem Empfangsgebäude (Skizze Architekturbüro Schünemann 2012).

Standort 8: Grundriss der Variante Fahrradparkdeck hinter dem Empfangsgebäude (Skizze Architekturbüro Schünemann 2012).

Standort 8: Querschnitt der Variante Fahrradparkdeck hinter dem Empfangsgebäude (Skizze Architekturbüro Schünemann 2012).
Standort 9: Radparken im Parkhaus Lindenarcaden
Die APCOA Parking Deutschland GmbH (APCOA GmbH) betreibt in den Lindenarcaden eine Tiefgarage für Pkw mit einer Zufahrt in der Straße Lindenplatz westlich des Lindenparks. Die APCOA GmbH hat auf Anfrage des Bereiches Stadtplanung und Bauordnung ein Konzept für eine Fahrradparkstation in den Lindenarcaden einschließlich Vorschlag für die Gebühren und eine Kosten-Nutzen-Schätzung erarbeitet.
Das Konzept sah vor, dass bis zu 295 Fahrräder auf einer Fläche von ca. 440m² ebenerdig im Parkhaus Lindenarcaden geparkt werden. Dafür entfielen 38 Pkw-Stellplätze. Der Zugang mit Fahrrad wäre ebenerdig über die Straße Lindenplatz über eine Schleuse mit vorhandenem Kassensystem möglich, mehrere Ausgänge für Fußgänger:innen zum Bahnhofsvorplatz und zur Werner-Kock-Straße sind im Parkhaus vorhanden. Zusätzliche Angebote wie E-Ladestationen oder Schließfächer könnten angeboten werden. Die Anlage wäre für Langzeit- und Kurzzeitparker nutzbar.
Die Umsetzung dieses ersten Konzeptes gestaltete sich sehr komplex. Zum einen müssten die Interessen des Gebäudeeigentümers, der Parkhausbetreiberin und der HL vereint werden. Zum anderen wären Rahmenbedingungen wie zum Beispiel die mögliche Zufahrt der Fahrräder in die Tiefgarage zu klären. Aktuell gibt es zwei Pkw-Zufahrten in die Tiefgarage. Für die Fahrradstellplätze müsste eine Pkw-Zufahrt aufgegeben werden. Dies erhöht das Geschäftsrisiko für die Parkhausbetreiberin.
Die APCOA GmbH hat die Tiefgarage von der Eigentümerin gepachtet und Ende 2017 einen Pachtvertrag über eine Laufzeit von zehn Jahren abgeschlossen. Nach der Erstellung des Nutzungskonzeptes hat die Eigentümerin des Gebäudes gewechselt.
Die HL hat die Gespräche wieder aufgenommen, um endgültig zu klären, ob für das Konzept doch noch Realisierungschancen bestehen. Die HL hat in diesen Gesprächen in Aussicht gestellt, die nötigen Investitionen ggf. zu übernehmen. Seitens der Betreiberin liegt seit dem 12.11.2020 nun allerdings die endgültige Absage vor, dass das Konzept nicht umgesetzt werden kann. Ursächlich ist im Wesentlichen, dass der laufende Pachtvertrag keine baulichen Veränderungen zulässt.

Standort 9: Zufahrt zum Parkhaus Lindenarcaden, Straße am Lindenpark (11/2020).
Standort 10: Tiefere Ebene für Fahrradparken auf dem Bahnhofsvorplatz
Für den Bahnhofsvorplatz gab es Überlegungen, die Fahrradbügel in einer tiefer gelegenen Ebene anzuordnen, wie an der Nørreport Station in Kopenhagen. Dort befinden sich die Fahrradbügel 40cm unter Geländeniveau, so dass sie nur auf halber Höhe zu sehen sind. Vorteilhaft ist, dass auch die Überdachungen der Fahrradbügel dadurch niedriger sind. Allerdings kann der Bedarf an Fahrradabstellanlagen mit dieser Variante nicht gedeckt werden. Hochbauten auf dem Bahnhofsvorplatz werden von der Denkmalpflege abgelehnt und auch die Umlegung von Versorgungsleitungen ist aufwändig und teuer.

Nørreport Station in Kopenhagen (https://www.archdaily.com/794012/norreport-station-gottlieb-paludan-architects-plus-cobe-architects)
Standort 11: Fahrradparkdeck über den DB-Gleisen parallel zur Bahnhofsbrücke
Diese Variante beinhaltet die Überbauung der aktiven DB-Gleise parallel zur neuen Bahnhofsbrücke mit einem Fahrradparkdeck mit Zugang zum Parkhaus und den Bahnsteigen von der Bahnhofsbrücke aus. Ein direkter Zugang vom Fahrradparkdeck zu den Bahnsteigen stellt einen großen Vorteil dar, das Bauwerk an sich ist jedoch technisch äußerst anspruchsvoll. Es muss im Gleisbereich aufgeständert werden. Auf der Ostseite steht hierfür die Fläche der stillgelegten Gleise und der Kasematten zur Verfügung, auf der Westseite ist die Fläche wegen des in Betrieb befindlichen und stark durch den Güterverkehr frequentierten Gleis 9 und der anschließenden Bebauung nicht vorhanden. Zwischen den Gleisen befindet sich ein begehbarer Düker der Entsorgungsbetriebe, der zu beachten ist. Oberleitungsmasten und die Leitungs- und Sicherungstechnik der DB AG, z.B. Signale müssen aufwändig verlegt werden, so dass wegen der erforderlichen Höhen das Fahrradparkdeck vermutlich höher als die Bahnhofsbrücke sein wird und durch Rampen verbunden wird. Für dieses Bauwerk sind umfangreiche Genehmigungen der DB Netz AG und dem Eisenbahnbundesamt (EBA), deren Erteilung aus hiesiger Sicht fraglich sein dürfte. Für den Bau ist eine Abfangung der Lindenarcaden erforderlich. Der Bahnverkehr muss während der Bauzeit zeitweilig unterbrochen werden. Es kann von einem Bauvolumen in Höhe eines zweistelligen Millionenbetrags ausgegangen werden.
Standort 12: Fahrradparkdeck über den DB-Gleisen in der ehemaligen „Gepäckbrücke“
Über den Bahngleisen befand sich eine Gepäckbrücke der DB parallel zum Personenstieg zwischen Empfangsgebäude und Steinrader Weg. Die Verwaltung hatte eine Nutzung zum Radparken geprüft. Das Radparken in der witterungsgeschützten Brücke wäre möglich gewesen, allerdings hätten wegen der geringen Breite nur eine begrenzte Anzahl Fahrräder parken können. Die Gepäckbrücke der DB wurde jedoch 2008 abgerissen.
Bei einem Neubau der Brücke könnte ein größerer Querschnitt gewählt werden, auch ein Zugang zu den Bahnsteigen wäre möglich. Allerdings gelten für den Neubau inzwischen andere Regeln und Richtlinien als für die alte Gepäckbrücke. Es ist mit ähnlich schwierigen Voraussetzungen wie für den Standort 11 zu rechnen, so dass eine Umsetzung technisch schwierig und sehr kostenintensiv ist.
- Standortsuche für ein Fahrradparkdeck am Steinrader Weg
Standort 13: Überdachte Fahrradabstellanlage auf dem DB-Grundstück
Auf dem Grundstück der DB AG am Bahnhofseingang Steinrader Weg wurde von der Hansestadt Lübeck geprüft, ob dort überdachte Fahrradabstellanlagen eingebaut werden können. Die Fläche würde für das Aufstellen einer Bike+Ride-Anlage wie an den Bahnhaltepunkten in Travemünde ausreichen, allerdings befinden sich im Untergrund des Grundstücks Kasematten. Diese Kasematten der DB AG sind in einem so schlechten Zustand, dass sie aus statischen Gründen gesperrt wurden und nicht betreten werden dürfen. Eine Ertüchtigung der Kasematten ist von Seiten der DB AG zurzeit nicht geplant.
Standort 14: Variante Fahrradparken im Bunker am Steinrader Weg
Im Juli 2016 fand eine Begehung des Bunkers am Steinrader Weg statt, der sich im Eigentum der DB Netz befindet. Nach Prüfung der Grundrisse wurde der Bunker als nicht geeignet für ein Fahrradparkhaus angesehen. Der Bunker ist sehr verwinkelt, die Räume sind schmal und durch die geringe Deckenhöhe ist kein Doppelstockparken möglich. Eine Nutzung mehrerer Stockwerke ist ebenfalls ausgeschlossen, da die Treppen unattraktiv für die Kunden wären und eine Nutzungsbarriere darstellen. Zudem ist der Bunker von Schimmel befallen und im Erdgeschoss steht regelmäßig Wasser. Die Einrichtung eines Fahrradparkhauses ist daher nicht praktikabel.
Die HL könnte die DB Netz den Kauf des Bunkers für einen symbolischen Betrag anbieten. Dann könnte die HL den Abriss des Bunkers veranlassen. Allerdings handelt es sich um ein sehr schwer zugängliches Grundstück direkt an den Bahnschienen, sodass sehr hohe Kosten zu erwarten sind. Dies wäre nur durch eine entsprechende Förderkulisse denkbar. Diese Möglichkeit wird nochmal geprüft, da nicht zu erwarten ist, dass die DB sich des Bunkers in naher Zukunft annehmen wird. Hier ließe sich eventuell Stadtreparatur mit der Stärkung des Radverkehrs verbinden. Die Stellplatzproblematik auf der Vorderseite des Bahnhofes muss parallel stets mitbetrachtet werden.
Zusammenfassung der Standortbetrachtung
Die Verwaltung sieht nur für die Standorte 7, 8, 13 und 14 eine reale Umsetzungperspektive. Diese Standorte wurden in der Übersichtskarte in grün kenntlich gemacht.
4. Förderung
Förderung durch Bundesprogramme
Zur Förderung des Radverkehrs im Rahmen des Klimaschutzes gibt es auf Bundesebene diverse Förderprogramme, die auch die Förderung des Neubaus von Fahrradparkhäusern beinhalten:
- Über die Kommunalrichtlinie der Nationalen Klimaschutzinitiative (NKI) des Bundesministeriums für Umwelt, Naturschutz und nukleare Sicherheit (BMU) wurde ein Förderaufruf "Klimaschutz durch Radverkehr" gestartet.
- Darüber hinaus könnten Fahrradparkhäuser auch im Rahmen des Programms des Bundesministeriums für Verkehr und digitale Infrastruktur (BMVI) zur "Förderung innovativer Projekte zur Verbesserung des Radverkehrs in Deutschland" gefördert werden.
- Im Rahmen der Finanzhilfen an die Länder gibt es das Sonderprogramm "Stadt und Land".
Förderung der Deutsche Bahn AG
Die Bike+Ride-Offensive der DB Station&Service AG und des Bundesumweltministeriums für die Nationale Klimaschutzinitiative unterstützt Kommunen bei der Errichtung von neuen Fahrradabstellplätzen bis 2022.
Förderung durch die NAH.SH
Das Land Schleswig-Holstein fördert überdachte Fahrradabstellanlagen an Bahnhöfen gemäß Gemeindeverkehrsfinanzierungsgesetz über die NAH.SH. Dies setzt voraus, dass die HL Eigentümerin bzw. Pächterin der Fläche ist oder ein Gestattungsvertrag vorliegt. Die Zweckbindungsfrist der Fördermaßnahme (Investition) beträgt 20 Jahre. Sollte ein Pachtvertrag eine geringere Pachtdauer beinhalten, besteht das Risiko, dass die Fördergelder zurückgezahlt werden müssen. Sofern die Förderbedingungen der NAH.SH erfüllt werden, wird der Hansestadt Lübeck eine Förderung in Aussicht gestellt.
Metropolregion Lübeck
Die Metropolregion Hamburg (MRH) fördert Fahrradabstellanlagen an Bahnhöfen prinzipiell auch als „Zweitförderung“, wie dies bereits bei den Bike+Ride-Anlagen in Travemünde geschehen ist. Die Zweckbindungsfrist der Förderprojekte der MRH beträgt 15 Jahre.
5. Abstimmungen mit der DB AG und der Abt. Brückenbau
Am 28.08.2018 wurde das Thema Fahrradparkdeck bei Vertretern der DB AG angesprochen und von dort in Aussicht gestellt, dass die Gleise (24 + 25) an der Konrad-Adenauer-Straße nicht benötigt werden (auch nicht für die Fehmarnbeltquerung), Gleis 24 ist abgehängt. Eine Überbauung der Gleise für eine Nutzung als Fahrradparkdeck wäre insofern denkbar (Standort 8).
Wenn der Neubau der Bahnhofsbrücke 2024 fertig ist und die Kasematten statisch gesichert werden würden, könnte ein Fahrradparkdeck nach Umbau des Straßenquerschnitts der Konrad-Adenauer-Straße realisiert werden (Standort 7).
Die Bahnhofsbrücke soll von 2021 bis 2024 neu gebaut werden. Für diesen Zeitraum sind Bautätigkeiten im Umfeld des Bahnhofs mit der Abt. Brückenbau abzustimmen.
Die HL und die DB AG haben sich Anfang November 2020 zum Sachstand und zu den Zielen, die die HL verfolgt, ausgetauscht. Die DB AG sieht nun ihre Zuständigkeit für die Sanierung/Sicherung der Kasematten, die nach Fertigstellung der Bahnhofsbrücke erfolgen kann. Auf Bitte der HL wird die Verfügbarkeit der Flächen der Gleise 24 und 25 aktuell nochmals von der DB AG geprüft und anschließend schriftlich bestätigt.
6. Empfehlung/Ausblick
Die Verwaltung wird ihre Bemühungen nun auf die vier Optionen mit Realisierungschancen konzentrieren. Eventuell können auch Kombinationen einzelner Standorte entwickelt werden. Die Fahrradbügel auf dem Bahnhofsvorplatz sollten weitgehend bleiben, da die gesamte Nachfrage nicht durch einen Neubau eines Fahrradparkdecks gedeckt werden kann.
Die Abstimmungsgespräche mit den verschiedenen Gesellschaften der DB AG werden dahingehend intensiviert, dass für mindestens einen der realisierbaren Standorte der Abschluss eines Gestattungsvertrags mit der DB AG angestrebt wird. Wenn die technischen Voraussetzungen zur Realisierung geklärt sind, können Förderanträge gestellt werden. Inzwischen haben sich die Rahmenbedingungen zur Planung von Bike+Ride-Anlagen seitens spezieller Ansprechpartner zur Abstimmung von Bike+Ride-Themen bei der DB AG, zahlreicher Fördermöglichkeiten und Handlungsempfehlung der Bundesregierung „Fahrradparken an Bahnhöfen“ vom Bundesministerium für Verkehr und digitale Intrastruktur (BMVI) zur intermodalen Verknüpfung von Fahrrad und Bahn verbessert, so dass die Chancen zur Realisierung eines solchen Projektes aktuell als hoch eingestuft werden.
Der Fachbereich 5 wird daher eine Projektgruppe bilden, um die Umsetzung eines Fahrradparkdecks zu forcieren. Eine Projektstruktur ist notwendig, da auch Kapazitäten des Hochbaus erforderlich sind. Außerdem ist eine mögliche Betriebsstruktur zu entwickeln. Dafür sind ggf. weitere Partner erforderlich.