SITUATION
Das Standesamt Lübeck erstreckt sich auf den Altbau, die sogenannte Lindesche Villa von 1804, und einen Neubau aus den 60er Jahren. Zum Gebäudekomplex gibt es zwei Zugänge: den repräsentativen Zugang zur Lindeschen Villa über eine hohe Freitreppe, sowie den eigentlichen, ebenerdigen Haupteingang in ein kleines Verbindungsbauwerk zwischen Alt- und Neubau.
Lindesche Villa Haupteingang und Verbindungbauwerk
BAULICHER ZUSTAND
Mit Übernahme des Gebäudebestandes des Bereiches Standesamt, durch die Hansestadt Lübeck im Jahre 2017, wurden, nach erster Gebäudeinspektion durch das GMHL und inzwischen erfolgter Bauzustandserfassung, gravierende bauliche Mängel festgestellt:
• Mangelhafte Wärmedämmung in allen Außenbauteilen des Anbaus (Sohle, Wände, Fenster, Dach)
• Mangelhafte Dachdeckung, Rinnen und Dämmung im Altbau
• Mängel an Fassade, Traufgesims, Zierelementen und Freitreppen
• Restauratorischer Bedarf an Zierornament und Stuckdekoren
• Verschlissene Fenster, Wand- und Bodenoberflächen
• asbestbelastete Bauteile
• vollkommen veraltete haustechnischen Anlagen
• Feuchteschäden in den Souterrainräumen des Altbaus durch Kondensat und / oder mangelhafte Vertikal- und Horizontalabdichtung
• Der Denkmalwert des Altbaus wird durch eine große Anzahl späterer Ein- und Zubauten gestört. Zu nennen sind hier insbesondere: Das Treppenhaus, einige Zwischenwände, abgehängte Decken, Türen, Gauben
• Fehlender Sonnenschutz für die südorientierten Büros
• Ungenügende Klimatisierung des Trausaals
• Brandschutzmängel
• Zugänglichkeit für mobilitätseingeschränkte Personen ist nicht gelöst
Eine Grundsanierung ist erforderlich. Das Projekt wurde in die Haushalts- und Investitionsplanung aufgenommen.
NUTZUNGSKONFLIKTE
Im gleichen Zuge blieb eine Betrachtung der aktuellen und perspektivischen Nutzerbedarfe und Anforderungen des Bereiches Standesamt unerlässlich. In der derzeitigen baulichen Situation lassen sich folgende Nutzungskonflikte feststellen:
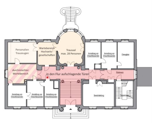
- Durch die heutige Aufteilung der Nutzungen auf die Lindesche Villa und den Anbau ist die Orientierung für die Besucher:innen sehr umständlich. Eine Umstrukturierung ist innerhalb der vorhandenen Baumasse nicht möglich.
- Die Zugänglichkeit für mobilitätseingeschränkte Personen ist nicht gelöst
Altbau
- Im Erdgeschoss kommt es zu Konflikten zwischen der Nutzung für die Trauungszeremonien und den anderen dort ansässigen Verwaltungsnutzungen
- Es fehlen ausreichende Wartezonen für die Hochzeitspaare und deren Gäste
- Räume für Empfänge nach den Trauungszeremonien sind nicht vorhanden
- Die Gestaltung des Treppenhauses im Altbau wird weder dem Denkmal, noch der Nutzung durch Hochzeitsgesellschaften gerecht
- der Altbau ist nur über einen Treppenlift barrierefrei zu erreichen, bei Nutzung Versperren des Rettungsweges
- Die vorzuhaltenden Personenstandsregister leiden unter den ungünstigen klimatischen Bedingungen im Untergeschoss der Lindeschen Villa (zu hohe Luftfeuchtigkeit für die Lagerung wichtiger Akten)
- Besucher:innen-WC’s gibt es nur im Anbau. Sie sind für die Nutzung durch Hochzeitgesellschaften zu weit entfernt, zu klein und zu verschlissen

Anbau
- Die Bürogrößen stimmen nicht mit den Nutzungserfordernissen überein.
- Der eigentliche Wartebereich für den Anbau ist deutlich zu klein, sodass zusätzliche Wartezonen im Flur geschaffen werden mussten. Dieser ist dafür allerdings zu schmal, zu dunkel, zu niedrig und zu den Büros hin akustisch zu schlecht abgeschirmt.
- Eine Differenzierung der Wartebereiche ist nicht möglich – es kommt zur emotionalen Durchmischung mit Bestattern.
- Der provisorisch ins Dachgeschoss verlagerte Besprechungsraum ist für die periodisch auftretenden Schulungen und Besprechungen zu klein. Zudem fehlt ihm ein zweiter Rettungsweg.
- Der jetzige Sozialraum ist zu klein und ohne ausreichende Tagesbelichtung.
- WC’s für mobilitätseingeschränkte Personen sind überhaupt nicht vorhanden.
BEGRÜNDUNG DER RAUM- UND NUTZERBEDARFE
Aus den vorgenannten Zuständen ergibt sich eine dringend notwendige Neuordnung räumlicher und funktionaler Zusammenhänge, sowie ein zwingender Mehrbedarf an Flächen für ein nachhaltiges und zukunftsfähiges Standesamt.
- Neuordnung des Villen-Erdgeschosses / Mehrbedarf an Flächen für die Eheschließungen
Die hohe Nachfrage an Eheschließungen und die zunehmende Größe der Hochzeitsgesellschaften führt in Überschneidungen (zwischenzeitlich bis zu 100 Personen und mehr) regelmäßig zum Übersteigen der räumlichen Kapazitäten und zu einer Unübersichtlichkeit der Situation. Auch die Zugänglichkeit der weiteren im Altbau angesiedelten Dienstleistungen ist zeitweise nicht gegeben.
Aufgrund dieser Entwicklung ist eine umfängliche Erweiterung der Bedarfsflächen für die Abwicklung und Gestaltung der Trauzeremonien zwingend notwendig:
- Entflechtung der Nutzungen Trauungszeremonie / Standesamt
- Schaffung ausreichender, separater Wartezonen im Trauungsbereich
- Schaffung von Räumen, die für Empfänge nach der Trauung geeignet sind
- Einbau von WC’s für die Hochzeitsgesellschaften
- eine funktionstüchtige Klimatisierung des Trausaals
Darüber hinaus ist den gesellschaftlichen Entwicklungen anlässlich einer Eheschließung (Ersatz der kirchlichen Trauungen, verschiedene Kulturen, musikalischer Untermalung, Erwartungshaltung an einen besonderen Tag, Sektempfang) in einem würdigen und dem Anlass gebührenden Rahmen zu entsprechen. Die Eheschließungen sind daher im Erdgeschoss der Lindeschen Villa in jedem Fall zu erhalten. Die Identifikation der Lübecker Bürger:innen mit diesem Standort ist sehr hoch.
Mit der Erweiterung der für die Eheschließungen zur Verfügung stehenden Flächen kann die Attraktivität des Ortes und das Angebot an Eheschließungen maßgeblich verbessert werden und dem Repräsentationscharakter und Denkmalwert des Gebäudes entsprochen werden.
- Mehrbedarf an Verwaltungsflächen
Um den zuvor begründeten Mehrbedarf an Flächen für die Eheschließungen im Villen-Erdgeschoss decken zu können, werden in diesem Bereich kleinteilige Verwaltungsflächen behutsam auf Grundlage bauhistorischer Untersuchungen zurückgebaut und sind an anderer Stelle zu ersetzen. Eine Verdichtung der momentanen Flächen im Anbau (Doppel- und Mehrfachbüros) ist aufgrund der datenschutzrechtlichen Anforderungen, des Ablaufs (öffentliche Beurkundungen) und der Sicherheitsvorkehrungen nicht möglich.
Zudem hat sich, durch ein immer breiteres Aufgabenspektrum der Behörde Standesamt, der Bedarf an Sachbearbeiter:innen stark erhöht, zum Beispiel durch die Übertragung von Aufgaben seitens des Gesetzgebers (Nachbeurkundung von Eheschließung, Geburten und Sterbefälle im Ausland, Entgegennahme von Namenserklärungen sobald ausländische Beteiligung vorhanden ist). Auch die Anzahl der Geburten (Zentralisierung der Geburtskliniken), Eheschließungen und Sterbefälle hat sich stetig erhöht.
Eine Situation der Enge entsteht vor allem auch in den Büros der Geburtenregister, welche im Bestand nur den Regelgrößen (ca. 15m²) entsprechen. War es vor Jahren noch überwiegend üblich, dass ein Elternteil alleine (häufig der Vater) die Geburtsurkunden für ein neugeborenes Kind ohne weitere Vorsprache abholen konnte (Eltern zum Zeitpunkt der Geburt verheiratet, Eheregister wird geführt beim Standesamt Lübeck), ist nun oftmals die Vorsprache beider Elternteile erforderlich, da beide Kindeseltern zum Beispiel eine Vaterschaftsanerkennung, eine Namenserklärung, o.ä. abgeben und zwingend persönlich anwesend sein müssen. Die wartenden Personen sind daher oft Mutter, Vater, ein Kind im Kinderwagen/Trageschale und ein älteres Geschwisterchen. Bei einer Geburtsbeurkundung mit Auslandsbezug spricht ebenfalls ein Dolmetscher:in mit vor, nicht selten auch eine weitere Vertrauensperson der Eltern. Unvermeidbar weitet sich der Wartebereich des Geburtenregisters dann bis in den Wartebereich des Sterberegisters aus. Es kommt zu einer emotionalen Durchmischung mit Bestattern.

Die vorgenannte Personenzahl führt zwangsläufig zu einem Versperren der Fluchtwege, z.B. im Brandfall, führt. Bedingt durch eine Zunahme der Sachverhalte mit Auslandsbezug kommt es vermehrt zu Konflikten, da häufig ein Verständnis für die geltenden gesetzlichen Regelungen fehlt und die Beschaffung der gesetzlich vorgeschriebenen Unterlagen häufig schwierig ist. Dies führt immer wieder zu aggressiven Spannungen und einer daraus resultierenden Bedrohungssituation für die Sachbearbeiter:innen. Die beschriebene Situation in den Büroräumen der Geburtenregister wird daher nicht nur für die Standesbeamt:innen und Besucher:innen beengend empfunden, sondern ist auch aus arbeitsschutzrechtlicher Sicht kritisch zu betrachten.
Um diesen strukturellen Veränderungen und dem Wandel unserer Gesellschaft gerecht werden zu können, sind abweichende Raumgrößen für das Geburtenregister von ca. 20m² sowie entsprechende Zuschnitte notwendig. Darüber hinaus begründen sich Einzelbüros zwangsläufig aus datenschutzrechtlichen Vorgaben (Verlesen von Schriften) und dem fortwährenden Publikumsverkehr. Ein Verorten der Räumlichkeiten im EG wäre für Eltern mit Babys und kleinen Kindern eine Willkommensgeste (kurze Wege mit Kinderwagen, Babyschalen etc.).
Für ein nachhaltiges und zukunftsfähiges Standesamt, hinreichend bürgerfreundlichen Service und adäquate Arbeitsplätze ist folgender Raumbedarf im Verwaltungsbereich des Standesamtes erforderlich:
- 20 Einzelbüros (6 Büros je 20m² für die Geburtenregister, 14 Büros je 15m²) mit fortwährendem Publikumsverkehr, unter Berücksichtigung des Verlesens von Schriften, sowie von Begleitpersonen (Dolmetscher:in, Betreuer:in) und Kinderwagen mit entsprechenden Fluchtmöglichkeiten für die Mitarbeiter:innen (sowie die Möglichkeit der unauffälligen Dokumentenprüfung)
- Besprechungsraum für regelmäßige Dienstbesprechungen in großer Runde und gesetzlich vorgeschriebene interne Lehrgänge
- Verlegung der zwingend vor Ort vorzuhaltenden Archivalien in Räume, die mit Sicherheit dauerhaft trocken sind (110 Jahre Geburten, 80 Jahre Eheschließung, 30 Jahre Sterbefälle)
- 2 kleine zentrale, für das Publikum nicht zugängliche Einheiten zur gesetzlich vorgeschriebenen Dokumentenprüfung und Einziehung gefälschter Dokumente
- Kassenraum mit entsprechenden Sicherheitsvorkehrungen
- In den 3 Registern kleine, zentrale Archive für die aktuell benötigten Sammelakten sowie Multifunktionsgeräte (Fax, Kopierer, Scanner)
- ausreichend große Personalräume: Sozialraum mit ausgestatteter Küche, Umkleideraum für die Standesbeamt:innen, die Reinigungskräfte und das Wachpersonal
- ein separater Still- und Wickelraum im Bereich des Geburtenregisters
- eine ausreichende Anzahl an Besucher:innen-WC´s in Altbau und Anbau
Eingangs- und Wartebereiche für den Publikumsverkehr
Des Weiteren bedürfen die Eingangs- und Wartebereiche für den Publikumsverkehr einer dringenden Neugestaltung und Aufwertung, u.a. Installation eines Aufrufsystems und Errichtung eines Informationstresens, um die Bürger:innen entsprechend in Empfang nehmen und zielgerichtet und vertraulich entsprechend ihrem Anliegen weiterleiten zu können. Es sind Differenzierungs- oder Rückzugsmöglichkeiten für emotionale und datenschutzrechtliche Belange anlässlich des Todes eines Angehörigen, einer Geburt oder einer Eheschließung zu berücksichtigen.
Wartebereich Anbau (Bestand)
BARRIEREFREIHEIT GEMÄSS LBO SH
Die momentane Situation mit Treppenlift im Altbau erlaubt keine eigenständige Nutzung, löst bei diversen Nutzer:innen Unsicherheit aus und bindet personelle Ressourcen. Darüber hinaus ist zum Zeitpunkt der Nutzung eine Fluchtmöglichkeit über das Treppenhaus nicht gegeben.
Der Anbau liegt 2 Stufen höher als das Eingangsbauwerk, der Höhenunterschied wird hier durch eine hölzerne, mobile Rampe > 6% überwunden.
Öffentlich zugängliche Gebäude sind nach § 52 in den dem allgemeinen Besucher- und Benutzerverkehr dienenden Teilen barrierefrei zu gestalten. Um allen Bürger:innen freien und selbständigen Zugang zu gewähren und am öffentlichen Leben teilhaben zu können, ist ein Aufzug für das Hochparterre der Lindeschen Villa unerlässlich. Je nach Bauvariante wird dies auch im Anbau notwendig sein und kann hier kombiniert und muss nicht im denkmalgeschützten Bestand umgesetzt werden.

Treppenlift Villa (Bestand)
BAUHISTORIE und DENKMALWERT
Die Lindesche Villa ist von erheblicher kunsthistorischer Bedeutung. Das klassizistische Gebäude wurde 1804 von dem dänischen Architekten Joseph Christian Lillie für den Senator Hermann Haartmann als Sommerhaus entworfen und wird als nobelstes unter den klassizistischen Sommersitzen in den Lübecker Vorstädten eingestuft. Um das Gebäude herum entstand ein Park, der ursprünglich bis zum heutigen Herderplatz reichte.

1898 wurde das Sommerhaus durch den Augenarzt Max Linde erworben, der darin eine bedeutende Kunstsammlung mit Werken von Edvard Munch, Auguste Rodin und Édouard Manet aufbaute. Munch war zwischen 1902 und 1907 oft in der Villa Dr. Lindes zu Gast, wovon heute noch zahlreiche Portraits von Angehörigen der Familie Linde zeugen, unter anderem das Gruppenbild „Die vier Söhne des Dr. Linde“, das heute im Behnhaus hängt, und grafische Ansichten des Hauses mit seinem großen Park.

Um 1905 ließ Max Linde das Haus erweitern – ein 1. Obergeschoss unter einem Mansarddach wurde hinzugefügt.

1922 wurde das Gebäude in die damalige Denkmalschutzliste aufgenommen.
Das aufgesetzte Mansardendach musste um 1960 wegen Holzbockbefalls ersetzt werden. Das heutige Walmdach entspricht der Form des Hauses während der ersten 100 Jahre.
1964 erwarb die Hansestadt Lübeck das Haus. Später wurde es auf die Grundstücks-Gesellschaft TRAVE mbH umgeschrieben, die auch den Umbau zum Standesamt einleitete. In diesem Zuge erhielt das Standesamt im Jahre 1967 einen „Neubau“ für die Verwaltung, der über einen Verbindungsgang mit der Villa verbunden ist, ein stirnseitig angeordnetes Treppenhaus vom KG bis zum DG und vier rückseitig angeordnete Dachgauben.
Am 28. August 1968 eröffnete das Lübecker Standesamt in seinem neuen Domizil an der Ratzeburger Allee 16.
2017 gab es Planungen für den Auszug des Standesamts und den Verkauf des Gebäudes. Der Mietvertrag der Stadt mit der Grundstücks-Gesellschaft TRAVE mbH lief bis zum 31. Dezember 2017. Das Gebäude wurde, im Tausch gegen ein Baugrundstück, von der Hansestadt Lübeck erworben und als Standort gesichert.
Der Denkmalwert des Gebäudes wird durch eine große Anzahl späterer Ein- und Zubauten gestört. Zu nennen sind hier insbesondere: das Treppenhaus, einige Zwischenwände, abgehängte Decken, Türen, Gauben.
Die Denkmalpflege wurde frühzeitig in die Planungen einbezogen. Restauratorische Voruntersuchungen erlauben wichtige Aufschlüsse zur Erbauungszeit und zur bauhistorischen Entwicklung des Gebäudes. Diese sind bei Sanierung und Umbau unerlässlich, da originale Baupläne leider nicht überliefert sind.
Der Anbau aus den 60er Jahren ist, trotz seiner Qualitäten, für die Denkmalpflege nicht von Belang. Ein Ersatz innerhalb der Abmaße des jetzigen Bestandes und unterhalb der Traufkante des Altbaus ist aus Sicht der Denkmalpflege ebenso möglich, wie sein Erhalt.
SCHADSTOFFKATASTER
Ein umfangreiches Schadstoffkataster wurde erhoben und bereits in den ersten Grobkosten berücksichtigt. Maßgeblich beruhen die Belastungen auf festgebundenen, asbesthaltigen Baustoffen in Bodenbelägen und Wandoberflächen. Eine erste Auswertung der Raumluftmessungen des Bereiches UNV ist unauffällig.
FREIANLAGEN
Die ursprünglich weitläufige und prägende Parkanlage ist nicht erhalten und lässt sich nur durch historische Lagepläne, künstlerische Darstellungen und die oben benannten grafischen Ansichten erahnen. Eine entsprechend qualitätvolle Gestaltung und Nutzung des Gartenbereiches im Zuge der baulichen Maßnahme wird als notwendig (Containerstellflächen, Baustelleneinrichtung und Zufahrt) und sinnvoll erachtet. Der Bereich Stadtgrün und Verkehr ist eingebunden.
Grobkostenschätzung:
Grundstücksgröße A = 4.778 m²
KG 500 Außenanlagen 455.000 €
KG 700 Nebenkosten 95.000 €
Grobkostenschätzung: 550.000 € inkl. MwSt.

Lageplan von 1850
INTERIMSPLANUNG
Während der Baumaßnahme kommt eine Verlagerung des Standesamtes nicht in Betracht. Die Umbaumaßnahmen müssen im laufenden Betrieb erfolgen.
Begründung des Bereiches Standesamt:
Alle Sachbearbeiter:innen müssen jederzeit auf die im Standesamt befindlichen Register und Sammelakten zugreifen können. Dieser Zugriff muss kurzfristig und direkt erfolgen. Eine Unterbringung der Register und Sammelakten an einem anderen Standort, als dem der Standesbeamt:innen/Sachbearbeiter:innen, ist daher nicht möglich. Auch die jeweiligen Sachgebiete des Bereiches müssen in unmittelbarer Nähe zueinander untergebracht sein, da hier Arbeitsabläufe ineinandergreifen.
Aufgrund der notwendigen Arbeitsabläufe kommt auch eine allgemeine Auslagerung der Eheschließungen an einen anderen Standort nicht in Betracht. Zwar werden bereits jetzt schon sogenannte Außentraustellen bedient, jedoch bleibt der Umfang hier weit hinter den „normalen“ Eheschließungen zurück. Bei mehreren hintereinander stattfindenden Eheschließungen müssen sich immer zwei Standesbeamt:innen zuarbeiten können (zum Beispiel für Eintragung von Änderungen, Änderungen in der Namensführung usw.), dies ist mit dem vorhandenen Personalbestand nicht zu leisten. Bei Eheschließungen im Dienstgebäude stehen immer mehrere Standesbeamt:innen kurzfristig für diese Aufgabe zur Verfügung.
Daher ist im Folgenden darzustellen, wie eine Unterbringung der Mitarbeiter:innen und der Register/Sammelakten während der Baumaßnahmen erfolgen kann.
Umsetzung
Die Umsetzung sollte in zwei Bauabschnitten erfolgen. Der erste Bauabschnitt wird sich auf den Anbau / Ersatzneubau konzentrieren, hier ist noch über den Umfang und die entsprechende Variante der weiteren Planung zu entscheiden. Im zweiten Bauabschnitt erfolgen die Sanierung und der Umbau der Villa.
1. Bauabschnitt – Anbau /Ersatzneubau
Aufgrund der vorgenannten Abhängigkeiten sind im ersten Bauabschnitt alle im Anbau untergebrachten Arbeitsplätze und Funktionen, mittels Interimsflächen, mit hinnehmbaren Einschränkungen vor Ort unterzubringen.
Verwaltung - Ausweichflächen im Altbau:
- drei Sachbearbeiter:innen des Sterberegisters in Zimmer 1 (ehem. Büro Bereichsleitung), erforderliche Anpassung Infrastruktur
- die Bereichsleitung und zwei Kolleginnen, die sich im Rahmen von Teilzeitbeschäftigungsverhältnissen einen Arbeitsplatz teilen könnten, im Dachgeschoss, erforderliche Anpassung Infrastruktur, 2. Rettungsweg mittels Gerüsttreppenturm
- Die Zahlstelle/Urkundenstelle in Zimmer 7 (derzeitiger Warteraum für Hochzeitsgäste entfällt), die Tür ist durch einen Ausgabetresen zu ersetzen (Kassensicherheit), erforderliche Anpassung Infrastruktur
- Die Zuarbeiter:innen zur Urkundenstelle wechselnd in den Archivräumen des Souterrain und in Zimmer 7
Zusätzliche Interimsflächen:
Für die verbleibenden Mitarbeiter:innen des Geburtenregisters ist eine Containeranlage mit 6 Büros (18-20m²), Wartebereichen und barrierefreiem WC auf dem Gelände Ratzeburger Allee 16 vorzuhalten (siehe Planungsskizze).
Eheschließungen:
Während der Bauphase wird es zu erheblichen Einschränkungen in diesem Bereich kommen (Baulärm, Schmutz/Staub, eingeschränkte Parkmöglichkeiten/Erreichbarkeit, Wegfall des Wartebereiches für Hochzeitsgäste, terminliche Verfügbarkeit des Trausaals), dieses ist entsprechend rechtzeitig auch über die Presse zu kommunizieren.
Der Erhalt des gesetzlich vorgeschriebenen würdigen Rahmens der Eheschließung ist aus Sicht des Bereiches Standesamt dennoch gegeben. Die Einschränkungen in diesem Bereich sind in der Bauphase vertretbar. Auch ein zeitweiliges Pausieren von Eheschließungen im Trausaal ist bei ausreichendem Vorlauf vertretbar, zum Beispiel für sehr einschränkende Bauphasen (Abbruch o.ä.).
2.Bauabschnitt – Sanierung der Villa
In den Varianten B oder C kann nach Fertigstellung der neuen Verwaltungsflächen der überwiegende Teil der Verwaltung und Funktionen umziehen und die Räumlichkeiten der Villa für den 2. Bauabschnitt freigeben.
Eheschließungen
Eheschließungen würden ab diesem Zeitpunkt nicht mehr in der Villa, sondern im Neubau stattfinden. Daher ist dafür im zweiten Bauabschnitt ein temporäres Raumkontingent im Neubau vorzuhalten:
Ein Büro als provisorischer Trausaal
ein Büro für die direkte Vorbereitung der Eheschließungen (Entgegenahme Daten Trauzeugen usw.).
In dieser Zeit gäbe es dann ebenfalls keinen separaten Wartebereich für Hochzeitsgäste. Da dann aber ohnehin ein großzügiger Wartebereich bestehen wird, ist diese Einschränkung für die Dauer der Baumaßnahme hinzunehmen.
Verwaltung
Drei Arbeitsplätze (Bereichsleitung, Nacherfassung, Zuarbeit der Urkundenstelle) sind weiterhin ausweichend in den vorhandenen Containern bereitzustellen. Sicherheitshalber ist die restliche vorhandene Containerfläche für das Archiv einzuplanen, da dieses Schriftgut im Bedarfsfall im Neubau keine Ausweichfläche fände.
Mögliche Planung: Containeranlage auf vorhandenem Parkplatz – Baustelleneinrichtung strassenseitig
Aufwendungen für Interimsmaßnahmen - Grobkostenschätzung brutto
1. Bauabschnitt
Altbau Umbaumaßnahmen 20.000 €
(Kassensicherheit, Gerüsttreppenturm,
Brandschutztür, Räume DG)
Altbau Ausweicharbeitsplätze Elektro 20.000 €
(Starkstrom, Netzwerk, Leuchten)
Trennung des Anbaus von HLS Versorgung 2.000 €
Container-Anlage Aufbau/Abbau 220.000 €
20 Container je 11.000 €
inkl. Planer-Honoraren
Container-Anlage - Miete 150.000 €
20 Container / 30 Monate
Containeranlage Elektro - Anbindung 40.000 €
(Starkstrom, Netzwerk, Erdung, Blitzschutz)
Containeranlage Wasser- und Abwasseranschl. 10.000 €
2. Bauabschnitt
Miete mobiler Heizcontainer 12 Mon. 27.000 €
(ohne Brennstoff)
Anschluss mobiler Heizcontainer 2.500 €
Interimsmaßnahmen Gesamtkosten gerundet 500.000 € inkl. MwSt.
VORABSTIMMUNGEN UND RAHMENBEDINGUNGEN
Mit Beginn der ersten Planungsüberlegungen erfolgten grundsätzliche Abstimmungen mit der Bauaufsicht, dem Tragwerksplaner und der Denkmalpflege. Die Bauaufsicht wurde um planungsrechtliche Einschätzung möglicher Erweiterungen gebeten, mit dem Ergebnis, dass sowohl eine Verlängerung des vorhandenen Anbaus im rückwärtigen Gartenbereich, als auch eine Aufstockung bzw. ein zweigeschossiger Neubau auf dem vorhandenen Baufeld des Anbaus möglich sind. Mit den Tragwerksplanern erfolgte eine Abstimmung zur Realisierbarkeit.
Im Gespräch mit der Denkmalpflege wurden folgende planerischen Vorgaben bestimmt:
- Zusätzliche Einbauten in die Dachfläche sind nicht möglich. Damit ist eine Nutzung des Dachgeschosses mit dauerhaftem Aufenthalt nicht möglich.
- Ein Rückbau der Dacheinbauten wird befürwortet.
- Eingriffe in die historische Substanz für den Einbau eines Aufzugs werden sehr kritisch gesehen. Die Kritik gilt sowohl dem Eingriff in vorhandene Bauteile als auch in die räumliche Struktur.
- Ein Rückbau von nachträglichen Zubauten im Inneren wird befürwortet.
- Der Ausbau des vorhandenen Anbaus zu einer Zweigeschossigkeit bzw. ein zweigeschossiger Neubau sind möglich, wenn dadurch Eingriffe in den Altbau minimiert werden können. Die Attika des Anbaus sollte jedoch deutlich unterhalb der Traufe des Altbaus liegen.
- Eine Verbindung zwischen Alt- und Neubau im Hochparterre des Altbaus (also im Obergeschoss des Anbaus) ist im Bereich des dort vorhandenen Fensters möglich.
NUTZUNGSKONZEPT / BAULICHE VARIANTEN
In enger Zusammenarbeit zwischen den Bereichen Standesamt, Denkmalpflege, Stadtgrün und Verkehr, dem GMHL sowie dem Objektplaner und den Fachplanern wurde ein künftiges Nutzungskonzept / Raumprogramm erarbeitet, dessen Umsetzung in drei baulichen Varianten untersucht wurde.
Auf Grundlage der Nutzerbedarfe und der erforderlichen baulichen Maßnahmen verspricht die Variante C aus Sicht der Verwaltung das wirtschaftlichste Ergebnis. Während in Variante A die nutzungsrelevanten Anforderungen nicht auskömmlich erfüllt werden können, ist dies in der Variante B unter Erhalt des Bestandes mit Kompromissen möglich. Dennoch sprechen entscheidende Vorteile, die mit einem geringen Mehrkostenaufwand im Vergleich zu Variante B erzielt werden können, für die Variante C:
- Raumprogramm kann vollständig u. mit einem Höchstmaß an Flexibilität umgesetzt werden
- energetisch einwandfreie Lösung Minimierung der Folgekosten (Unterhalt und Energieverbrauch)
- ein in allen Teilen zeitgemäßer Verwaltungsbau
Die Planungen befinden sich aktuell in einem frühen konzeptionellen Stadium. Im nächsten Schritt soll die Erstellung einer EW-Bau erfolgen. Daran schließt sich die Freigabe des Projekts durch die kommunalen Gremien für eine Umsetzung der Maßnahme ab 2021 an. Die Einwerbung von Fördermitteln für die Maßnahmen im denkmalgeschützten Gebäudebestand wird im Zuge der voranschreitenden Entwurfsplanung angestrebt.
Aufgrund der aktuellen Nutzungsanforderungen an das Standesamt und der daraus resultierenden, baulichen Folgen soll dieser Bericht die zuständigen Gremien über die von der Verwaltung beabsichtigte Planung informieren, damit eine zielgerichtete Erstellung der EW-Bau im weiteren Verfahren erfolgen kann.
Begründung der Dringlichkeit:
Mit diesem Bericht werden die politischen Gremien früh in die Überlegungen eingebunden. Eine Behandlung im Bauausschuss am 16.03.2020 und im Umweltausschuss am 17.03.2020 liegt darin begründet, dass noch vor den Osterferien die Erstellung der EW-Bau beauftragt werden soll, um die für dieses Projekt zur Verfügung stehenden Haushaltsmittel (Reste aus 2019) bis zum Jahresende zu verausgaben.