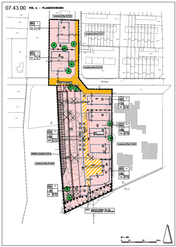
Die Hansestadt Lübeck stellt derzeit den Bebauungsplan (B-Plan) 07.43.00 - Heiweg / Heidenkoppel auf. Mit diesem B-Plan sollen die in seinem Geltungsbereich gelegenen Flächen südlich der Straße „Heiweg“ einer Wohnnutzung mit offener Bauweise zugeführt werden. Vor der Neuplanung befand sich bis zum Jahr 2011 auf dieser Fläche eine Kindertagesstätte mit Spielanlagen. Diese Nutzung wurde aufgegeben, die ehemals vorhandenen Gebäude sind abgebrochen worden. Insgesamt wird mit der Aufstellung des B-Plans die Schaffung von ca. 28 Wohneinheiten vorbereitet.
Das B-Plangebiet erfährt seine äußere verkehrliche Erschließung über die Straße „Heiweg“.
Die nördlich des „Heiweg“ gelegenen Flächen sind durch die Straße „Diamantweg“ bereits erschlossen. Die innere Erschließung der südlich des „Heiweg“ gelegenen Flächen soll über eine neu herzustellende Erschließungsanlage mit einer Wendeanlage gewährleistet werden, die der B-Plan als Verkehrsfläche besonderer Zweckbestimmung ausweist.
Die ordnungsgemäße Schmutzwasserentsorgung sowie die Abfallentsorgung erfolgt durch die Entsorgungsbetriebe der Hansestadt Lübeck. Die im südlichen Teil des B-Plangebiets neu zu erstellenden entwässerungstechnischen Erschließungsanlagen werden an den in der Straße „Heiweg“ vorhandenen öffentlichen Schmutzwasserkanal angeschlossen. Für die Niederschlagsentwässerung ist eine Versickerungslösung im B-Plangebiet vorgesehen.
Die Herstellung der neu zu erstellenden verkehrlichen und entwässerungstechnischen Erschließungsanlagen wird mit dem aufgrund dieses Beschlusses zu schließenden Vertrag dem Erschließungsträger übertragen.
Gemäß § 123 des Baugesetzbuches (BauGB) ist die Erschließung von Baugebieten Aufgabe der Gemeinde. Nach § 11 Abs. 1 BauGB kann die Gemeinde über die Erschließung städtebauliche Verträge abschließen und die Erschließung damit Dritten übertragen. Die „das bc-haus baugesellschaft GmbH & Co. KG“ plant auf den mit dem genannten B-Plan ausgewiesenen Flächen für Wohnnutzung die Errichtung von Wohngebäuden. Zu diesem Zweck hat sie diese Flächen käuflich erworben. Da eine Erschließung des Bebauungsplangebiets durch die Hansestadt Lübeck kurzfristig wirtschaftlich nicht möglich und haushaltsmäßig gegenwärtig nicht gesichert ist, ist die „das bc-haus baugesellschaft GmbH & Co. KG“ mit dem Angebot an die Hansestadt Lübeck herangetreten, die Erschließung des Bebauungsplangebiets durch Vertrag (Erschließungsvertrag) zu übernehmen.
Gemäß § 11 Abs. 1 Nr. 1 BauGB kann die Gemeinde über die Erschließung durch nach Bundes- oder nach Landesrecht beitragsfähige sowie nicht beitragsfähige Erschließungsanlagen einen städtebaulichen Vertrag abschließen und die Erschließung damit an einen Dritten übertragen. Die vertraglich vereinbarten Leistungen müssen nach § 11 Abs. 2 BauGB dabei den gesamten Umständen nach angemessen sein. Trägt oder übernimmt der Vertragspartner Kosten oder sonstige Aufwendungen, ist eine Eigenbeteiligung der Gemeinde nicht erforderlich.
Die „das bc-haus baugesellschaft GmbH & Co. KG“ soll mit dem zu schließenden Vertrag sämtliche Erschließungskosten des Bebauungsplangebiets übernehmen, die sich nach gegenwärtigen Schätzungen auf voraussichtlich etwa 500.000 Euro belaufen werden. Dies ist insoweit als angemessen im vorgenannten Sinne anzusehen, als dass der anfallende Erschließungsaufwand ausschließlich der Baureifmachung der durch die „das bc-haus baugesellschaft GmbH & Co. KG“ erworbenen Flächen dient.
Alternativ zur Übertragung der Erschließung an die „das bc-haus baugesellschaft GmbH & Co. KG“ wäre die Erschließung durch die Stadt selbst möglich. Die Finanzierung der Erschließung müsste dann durch die Erhebung von Erschließungsbeiträgen nach §§ 127 ff. BauGB erfolgen. Aufgrund § 129 Abs. 3 BauGB hätte die Hansestadt Lübeck 10 % der Erschließungskosten hierbei selbst zu tragen.
Gemäß § 124 BauGB ist die Gemeinde verpflichtet die Erschließung selbst durchzuführen, wenn sie einen Bebauungsplan im Sinne des § 30 Absatz 1 BauGB erlassen hat und das zumutbare Angebot zum Abschluss eines städtebaulichen Vertrags über die Erschließung ablehnt. Sollte eine Übertragung der Erschließung durch entsprechenden Vertrag nicht erfolgen, ist die Hansestadt Lübeck mit Rechtskraft des B-Plans zur Durchführung der Erschließung verpflichtet. In der Folge ergäbe sich eine Beteiligung der Stadt an den Kosten der Erschließung mit 10 % der Gesamtkosten.
Die Übertragung der Erschließungsmaßnahmen auf den Erschließungsträger wird empfohlen, um den Vollzug des Bebauungsplanes zügig zu ermöglichen. Hierdurch wird der durch den Bebauungsplan seitens der Hansestadt Lübeck formulierte Planungswille zeitnah umgesetzt. Durch die Übertragung auf den Erschließungsträger wird der städtische Haushalt ferner um den 10 %igen Anteil der Hansestadt Lübeck am Erschließungsaufwand entlastet. Weiter entfallen Fremdfinanzierungszinsen, die seitens der Stadt bei eigener Erschließung zu tragen wären.
Zur Sicherung der Durchführung der Maßnahmen wird der Erschließungsträger der Hansestadt Lübeck eine selbstschuldnerische Bürgschaft einer deutschen Bank oder Sparkasse in Höhe der voraussichtlichen Herstellungskosten der Erschließungsanlagen stellen. Die kostenlose und lastenfreie Übertragung der Erschließungsanlagen auf die Stadt wird durch Auflassungsvormerkungen grundbuchlich gesichert.
Durch den zu fassenden Beschluss werden die Belange von Kindern und Jugendlichen nicht berührt. Die Beteiligung von Kindern und Jugendlichen im Sinne des § 47 f GO erfolgt im Zuge des Verfahrens zur Aufstellung des Bebauungsplanes „07.43.00 – Heiweg / Heidenkoppel“, der dem zu schließenden Vertrag mit dem Erschließungsträger zugrunde liegt.
Aus den dargestellten Gründen wird dem Bauausschuss empfohlen, die Übertragung der Erschließung des Bebauungsplangebiets „07.43.00 – Heiweg/ Heidenkoppel“ durch Erschließungsvertrag an die „bc-haus baugesellschaft GmbH & Co. KG“ zu beschließen.
Übersicht Plangebiet (Auszug B-Plan 07.43.00 – Heiweg / Heidenkoppel, Planungsstand Januar 2014 )
