Die Hansestadt Lübeck stellt derzeit den Bebauungsplan (B-Plan) 10.44.00 – Blankensee / Alter Dorfkern auf. Mit diesem B-Plan sollen ehemals landwirtschaftliche genutzte Flächen östlich des „Blankenseer Dorfplatzes“ einer Bebauung mit Wohngebäuden (Einfamilienhäuser) zugeführt werden. Insgesamt wird mit der Aufstellung des B-Plans die Errichtung von maximal 38 neuen Wohneinheiten vorbereitet. Bei Neubauten werden zwei Wohneinheiten je Gebäude zulässig sein, dieses ergibt bei 16 neu gebauten Einfamilienhäusern maximal 32 neue Wohnungen. Zudem wird im Bestand durch Ausbau des vorhandenen Bauernhauses bzw. Neubau die Errichtung von acht zusätzlichen Wohnungen ermöglicht.
Das B-Plan-Gebiet ist über die Verlängerung des Blankenseer Dorfplatzes erschlossen. Von diesem führt die Straße „Söllbrock“ in Richtung Westen zur Straße „Am Flugplatz“/B 207, die nach Norden direkt in das Zentrum von Lübeck führt und in südlicher Richtung nach ca. 100 m auf die Anschlussstelle der Autobahn 20 stößt. Zudem führt die Straße „Seekamp“ vom „Blankenseer Dorfplatz“ in Richtung Osten nach Groß Grönau. Eine ÖPNV-Anbindung ist durch die vorhandenen Bushaltestellen am „Blankenseer Dorfplatz“ gegeben. Vom Bahnhaltepunkt „Lübeck-Flughafen“ bestehen stündliche Regionalbahn-Verbindungen nach Lübeck und nach Büchen/Lüneburg.
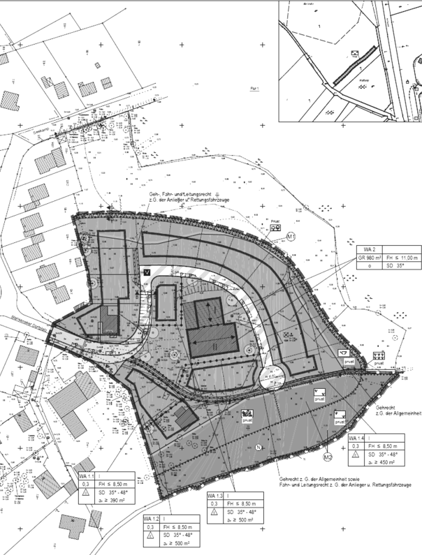
Die Erschließung der neu geplanten Grundstücke erfolgt über eine Stichstraße, die von der asphaltierten Umfahrung des Blankenseer Dorfplatzes abzweigt. Der Bebauungsplan setzt die entsprechenden Flächen für die Erschließungsanlagen als Straßenverkehrsflächen bzw. im weiteren Verlauf der Stichstraße als gemischte Verkehrsfläche fest (siehe B-Planausschnitt unten). Innerhalb der Stichstraße sollen zudem 14 öffentliche Parkplätze angeordnet werden. Die Herstellung des nicht vom Bebauungsplan überplanten Straßenabschnitts zwischen Dorfplatz und dem räumlichen Geltungsbereich des Bebauungsplans ist Bestandteil der Erschließung des Bebauungsplangebiets und wird mit dem zu schließenden Vertrag ebenfalls dem Erschließungsträger übertragen.
Die ordnungsgemäße Schmutzwasserwasserentsorgung sowie die Abfallentsorgung erfolgt durch die Entsorgungsbetriebe der Hansestadt Lübeck. Die Flächen des Plangebiets sind entwässerungstechnisch bisher nur teilweise erschlossen. Eine Einleitung des Schmutzwassers aus dem Plangebiet ist in den vorhandenen öffentlichen Schmutzwasserkanal im Bereich des „Blankenseer Dorfplatzes“ vorgesehen.
Gemäß § 123 des Baugesetzbuches (BauGB) ist die Erschließung von Baugebieten Aufgabe der Gemeinde. Nach § 11 Abs. 1 BauGB kann die Gemeinde über die Erschließung städtebauliche Verträge abschließen und die Erschließung damit Dritten übertragen. Die Fa. Gerstmann Immobilien, Harald Gerstmann e.K. plant auf dem mit den B-Plan ausgewiesenen Wohngebiet die Errichtung von Wohngebäuden und beabsichtigt, zu diesem Zweck den Großteil der Flächen des Geltungsbereich des B-Planes zu erwerben. Da eine Erschließung des Bebauungsplangebiets durch die Hansestadt Lübeck kurzfristig wirtschaftlich nicht möglich und haushaltsmäßig gegenwärtig nicht gesichert ist, ist die Fa. Gerstmann Immobilien mit dem Angebot an die Hansestadt Lübeck herangetreten, die Erschließung des Bebauungsplangebiets durch Vertrag (Erschließungsvertrag) zu übernehmen.
Gemäß § 11 Abs. 1 Nr. 1 BauGB kann die Gemeinde über die Erschließung durch nach Bundes- oder nach Landesrecht beitragsfähige sowie nicht beitragsfähige Erschließungsanlagen einen städtebaulichen Vertrag abschließen und die Erschließung damit an einen Dritten übertragen. Die vertraglich vereinbarten Leistungen müssen nach § 11 Abs. 2 BauGB dabei den gesamten Umständen nach angemessen sein. Trägt oder übernimmt der Vertragspartner Kosten oder sonstige Aufwendungen, ist eine Eigenbeteiligung der Gemeinde nicht erforderlich.
Die Fa. Gerstmann Immobilien soll mit dem zu schließenden Vertrag sämtliche Erschließungskosten des Bebauungsplangebiets übernehmen, die sich nach gegenwärtigen Schätzungen auf voraussichtlich etwa 390.000 Euro belaufen werden. Dies ist insoweit als angemessen im vorgenannten Sinne anzusehen, als dass der anfallende Erschließungsaufwand im Wesentlichen der Baureifmachung der durch die Fa. Gerstmann Immobilien erworbenen bzw. zu erwerbenden Flächen dient.
Alternativ zur Übertragung der Erschließung an die Fa. Gerstmann Immobilien wäre die Erschließung durch die Stadt selbst möglich. Die Finanzierung der Erschließung müsste dann durch die Erhebung von Erschließungsbeiträgen nach §§ 127 ff. BauGB erfolgen. Aufgrund § 129 Abs. 3 BauGB hätte die Hansestadt Lübeck 10 % der Erschließungskosten hierbei selbst zu tragen.
Gemäß § 124 BauGB ist die Gemeinde verpflichtet die Erschließung selbst durchzuführen, wenn sie einen Bebauungsplan im Sinne des § 30 Absatz 1 BauGB erlassen hat und das zumutbare Angebot zum Abschluss eines städtebaulichen Vertrags über die Erschließung ablehnt. Sollte eine Übertragung der Erschließung durch entsprechenden Vertrag nicht erfolgen, ist die Hansestadt Lübeck mit Rechtskraft des B-Plans zur Durchführung der Erschließung verpflichtet. In der Folge ergäbe sich eine Beteiligung der Stadt an den Kosten der Erschließung mit 10 % der Gesamtkosten.
Die Übertragung der Erschließungsmaßnahmen auf den Erschließungsträger wird empfohlen, um den Vollzug des Bebauungsplanes zügig zu ermöglichen. Hierdurch wird der durch den Bebauungsplan seitens der Hansestadt Lübeck formulierte Planungswille zeitnah umgesetzt. Durch die Übertragung auf den Erschließungsträger wird der städtische Haushalt ferner um den 10 %igen Anteil der Hansestadt Lübeck am Erschließungsaufwand entlastet. Weiter entfallen Fremdfinanzierungszinsen, die seitens der Stadt bei eigener Erschließung zu tragen wären.
Zur Sicherung der Durchführung der Maßnahmen wird der Erschließungsträger der Hansestadt Lübeck eine selbstschuldnerische Bürgschaft einer deutschen Bank oder Sparkasse in Höhe der voraussichtlichen Herstellungskosten der Erschließungsanlagen und der naturschutzrechtlichen Ausgleichsmaßnahmen stellen. Die kostenlose und lastenfreie Übertragung der Erschließungsanlagen auf die Stadt wird durch Auflassungsvormerkungen grundbuchlich gesichert.
Der Bebauungsplan und die damit verbundenen baulichen Maßnahmen stellen einen Eingriff in Natur und Landschaft dar. Gemäß § 1a BauGB sind diese auszugleichen. Die nicht vermeidbaren Eingriffe werden entsprechend den Festsetzungen des B-Plans durch Maßnahmen im Geltungsbereich des B-Planes (Teilbereich I und II) ausgeglichen. Im Einzelnen sind die Maßnahmen zur Vermeidung, Minimierung und zum Ausgleich und Ersatz sowie die geprüften Alternativen im Textteil des Bebauungsplanes (Nr. I des Textteils des B-Planes) und im dazugehörigen Umweltbericht (Nr. II des Textteils des B-Planes) dokumentiert. Neben dem Erschließungsvertrag wird durch gesonderten städtebaulichen Vertrag die Durchführung der Ausgleichsmaßnahmen ebenfalls der Fa. Gerstmann Immobilien übertragen.
Aus den dargestellten Gründen wird dem Bauausschuss empfohlen, die Übertragung der Erschließung des Bebauungsplangebiets 10.04.00 – Blankensee / Alter Dorfkern durch Erschließungsvertrag an die Fa. Gerstmann Immobilien, Harald Gerstmann e.K. zu beschließen.
Übersicht Plangebiet (Auszug B-Plan 10.04.00 – Blankensee / Alter Dorfkern
