Das NEUE Buddenbrookhaus

Ein neues Zuhause für Buddenbrooks

Thomas Mann hat mit seinem Debütroman „Buddenbrooks“, für den er 1929 den Literaturnobelpreis erhielt, das Haus in der Lübecker Mengstraße 4 weltberühmt gemacht. Es ist das Haus seiner Großeltern und damit der Stammsitz der Lübecker Kaufmannsfamilie Mann. Zugleich spielt der Weltbestseller „Buddenbrooks“, der Lübeck in der ganzen Welt berühmt gemacht hat und dem das Haus seinen heutigen Namen verdankt. Seit 1993 gibt es an gleicher Stelle ein Museum, das dem Leben und Werk der Schriftstellerbrüder Heinrich und Thomas Mann gewidmet ist.

Zurzeit ist das Haus für seinen umfassenden Umbau geschlossen: Es wird baulich um sein Nachbargrundstück im Westen, die Mengstraße 6, erweitert und eine völlig neue Dauerausstellung erhalten. Bis zu seiner Wiedereröffnung voraussichtlich 2030 ist das Buddenbrookhaus mit wechselnden Sonderausstellungen in anderen Häusern zu Gast und mit zahlreichen Veranstaltungen sowie einem interimen Shop und Infocenter in Lübeck präsent, vgl. www.buddenbrookhaus.de

 

Bauen im Welterbe

Die Hansestadt Lübeck ist die Bauherrin des Projekts „Das NEUE Buddenbrookhaus“, die Kulturstiftung Hansestadt Lübeck vertritt die Interessen der Nutzerin. In einem offenen, europaweit ausgeschriebenen Architekturwettbewerb hat sich der Entwurf von TMH S Architekten als Sieger durchgesetzt. Die zusammenzulegenden Gebäude in der Mengstraße 4 und 6 liegen in der Pufferzone des UNESCO-Welterbes Lübecker Altstadt, unmittelbar gegenüber von St. Marien, der Mutter europäischer Backsteingotik. Auch stehen Teile der Bestandsgebäude unter Denkmalschutz. Zukünftig wird ein Neubau die denkmalgeschützten Gebäudeteile so integrieren, dass ein geeinter, moderner Museumsbau entsteht, der die Historie respektiert und in seiner Fassadengestaltung die Parzellierung der Häuser weiterhin abbildet. Eine Blende mit dem Schriftzug „Was – ist – das?“ zitiert den ersten Satz des namensgebenden Romans „Buddenbrooks“.

Downloads

 

Grundrisse & Studie

Grundrisse zum Wettbewerb 2018
Plan 1*
Plan 2
Plan 3
Plan 4

Baugenehmigung

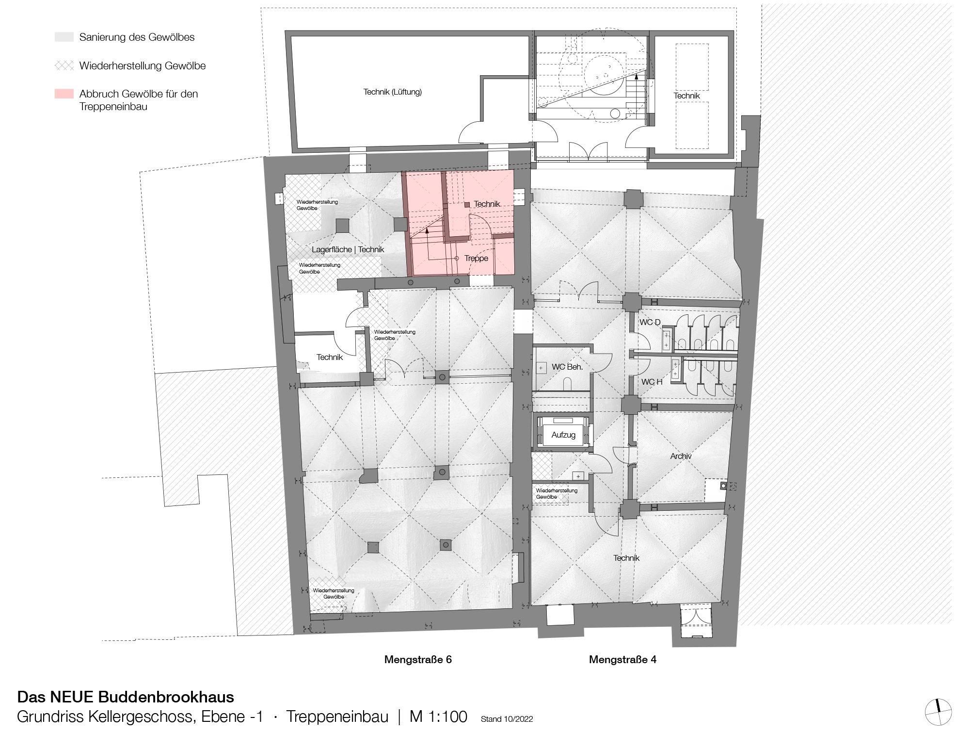
*Hinweis: Planzeichnung 1 des Kellers im Wettbewerbsergebnis entspricht nicht mehr dem aktuellen Planungs-/Bauantragstand. Die Eingriffe in die Kellergewölbe wurden reduziert, die Haustechnik aus dem historischen Keller außerhalb des Gebäudes verlegt. Aktueller Planungsstand siehe Skizze.

Grundlage des Wettbewerbs:
Machbarkeitsstudie Heyroth + Kürbitz 2014

 

 

Weitere Dokumente

 

 

 

Weltliteratur und Kulturtourismus

Als weltweit einzige Gedenkstätte für die Schriftstellerfamilie Mann zählt das Buddenbrookhaus zu den bedeutendsten und am meist frequentierten Kulturdestinationen in Norddeutschland. Die Ausstrahlung des Hauses reicht weit über die Region hinaus: Entsprechend der Weltgeltung des Romans „Buddenbrooks“, der in 40 Sprachen übersetzt wurde, stammen mehr als 90% der Museumsbesucher:innen nicht aus Lübeck. Dieser kulturtouristischen Bedeutung des Hauses folgt das Land Schleswig-Holstein, das die Erneuerung des Buddenbrookhauses mit etwa 70% der Baukosten fördert.

Weitere Mittel zur Realisierung des Projekts „Das NEUE Buddenbrookhaus“ stellen der Bund, die Hansestadt Lübeck, zahlreiche Stiftungen und private Spender:innen bereit. Die weit überregionale Ausstrahlung des „NEUEN Buddenbrookhauses“ inklusive seiner regionalwirtschaftlichen Effekte wurde durch eine unabhängige Machbarkeitsstudie bestätigt: Machbarkeitsstudie NIT vota 2016

 

 

Einblicke in den Gewölbekeller

Langwährende Diskussionen um die Erschließung des historischen Untergeschosses konnten in einem Begleitarbeitskreis der Lübecker Bürgerschaft beigelegt werden: Zukünftig werden nicht nur alle Gewölbedecken des Kellers erhalten und saniert werden können, sondern auch für die Öffentlichkeit zu besichtigen sein. War der eindrucksvolle Keller der Mengstraße 6 bisher öffentlich nicht zugänglich, wird er durch den Museumsbau fortan für alle Interessierten einsehbar und als museumspädagogischer Seminarraum erlebbar sein.

Bilder der Baustelle geben einen ersten Eindruck von der besonderen Atmosphäre des Ortes:

Dummy-Bildbeschreibung

Für den Durchgang zwischen den historischen Kellern der Mengstraße 4 und 6 wurde eine vorhandene Störung genutzt. Das Bild zeigt den Blick vom Keller des Buddenbrookhauses in den Nachbarkeller der Mengstraße 6.

Großer Kellerraum Mengstraße 6, späterer museumspädagogischer Seminarraum. Der älteste Bestand des Kellers geht zurück auf das 13. Jahrhundert. Für die Öffentlichkeit wird der Keller mit der Erneuerung des Buddenbrookhauses erstmalig erlebbar sein.

Derselbe Kellerraum mit Blickrichtung zur Mengstraße hin. Gut zu erkennen sind die historischen Bodenplatten aus Öland, die nummeriert und kartiert wurden, um sie nach der Erneuerung des Museums an Ort und Stelle wieder zu verlegen.

Das Bild zeigt im hinteren Teil die vier Gewölbefelder und zwei Säulen, die in der Ursprungsplanung einem Treppeneinbau weichen sollten. Nach der erfolgten Umplanung wird nun auch dieser historische Bestand erhalten bleiben.

Wie im Bild zuvor, nur mit Blickrichtung zur Mengstraße. Die Betonmanschetten der Säulen können nicht entfernt werden. Sie sichern die Säulen über den Umbau des Buddenbrookhauses hinaus.

Der Durchgang zwischen den Kellern aus Perspektive der Mengstraße 6. Gut zu erkennen ist rechts von der gemauerten Öffnung eine erhaltene Lichtnische.

 

 

Geplante Baumaßnahmen

Die Baumaßnahmen beginnen im Januar 2026 mit vorbereitenden Maßnahme für die Translozierung. Dies sind u.a. der Teilabbruch im Inneren der Häuser, der Ausbau der Fenster und deren Einlagerung und der Bau einer Behelfsabdichtung zum Schutz der denkmalgeschützten Kellersubstanz. Darauf folgt die Translozierung der Fassade Mengstraße 6. Geplant ist es, die Fassade in 4 Teilabschnitte zu unterteilen und auf dem Marienkirchhof bis zu ihrem Wiedereinbau zu lagern.

Als zweiter Abschnitt wird die Fassade der Mengstraße 4 durch ein Stahlgerüst gegen Kippen gesichert, damit der dahinterliegende Bau abgerissen werden kann.

Der Abbruch der beiden Gebäude Mengstraße 4+6 wird dann im Anschluss Anfang 2027 stattfinden. Zur Sicherung der Rettungswege werden im Januar 2026 an ausgesuchten Gebäude interime Fluchttreppen errichtet.

 

 

Das könnte Sie auch interessieren