- Allgemeines:
Bauwerkszustand:
Die Straßenbrücke 122 Gut Mönkhof liegt im Hochschulstadtteil der Hansestadt Lübeck und wird über den Mönkhofer Weg erreicht. Der Weg mit ländlichem Charakter führt als Feldweg von der Albert-Letzius-Straße bis zum Gelände des Gutes.
Auf dem Gelände des Gutes Mönkhof wird ein Veranstaltungsbetrieb betrieben. Dazu sind Mietwohnungen und in einem Gebäude eine Kinderbetreuung eingerichtet.
Im umliegenden Bereich sind Felder, teilweise von der Hansestadt verpachtet, vorhanden.
Alle Nutzungen werden ausschließlich über den Mönkhofer Weg und die Brücke über den Nienmarker Landgraben erreicht.
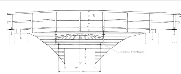
Das Bauwerk ist in seiner jetzigen Form 1941 erstellt, 1975 durch Erneuerung der Geländer, Bohlenbelag und Asphaltdecke ertüchtigt und 1997 durch zusätzliche Zugbänder stabilisiert worden. Der Überbau besteht aus einer Lage Einfeldträger, die auf Widerlagerwänden aus Mauerwerk aufliegen. Im Bett des Gewässerlaufs liegt eine Unterwasserbetonsohle, worauf die Mauerwerkswände aufgebaut sind. Der Straßenaufbau wird im Bereich der Widerlager durch Flügelwände gesichert. Die Flügel sind ebenso gemauert.

Bild: Ansicht Bestandsbauwerk
Die letzte Sonderprüfung 2020S1 im Zuge der Bauwerkserhaltung ergab für die Bauwerkskonstruktion und die Verkehrssicherheit die Note 4. Grund dafür sind mehrere Schadensbilder, die sich in den letzten Jahren derart entwickelten, dass der Gesamtkonstruktion eine sehr schlechte Bewertung zuzuordnen ist.
Die Konstruktion ist in ihrer Substanz abgenutzt sowie vollständig abgängig. Die Verkehrssicherheit kann für die Nutzungserfordernisse nicht mehr gewährleistet werden. Die Überfahrt durch Ver- und Entsorgungsverkehr des Anliegers und die Nutzung durch die Maschinen der Landwirtschaft kann nicht mehr zugelassen werden und ist zurzeit insoweit eingeschränkt, dass Überfahrten für Fahrzeuge mit einem Gewicht > 3,5 t verboten ist.
Aufgrund der Bewertungen ist ein Ersatzneubau für die Brücke zwingend erforderlich.
Da eine kurzfristige Sperrung des Bauwerks unausweichlich ist, wird kurzfristig (Baubeginn 07/2021) eine Behelfsbrücke in Nebenlage errichtet. Diese stellt die Erreichbarkeit des Gutes und der städtischen landwirtschaftlichen Flächen sicher.
Geplanter Ersatzneubau:
Mit dem Ersatzneubau soll gleichzeitig eine Aufwertung im Sinne der Durchgängigkeit des Gewässers, die sich aus der EU-Wasserrahmenrichtlinie ergibt, des Landgrabens stattfinden. Somit ist das Ersatzbauwerk so zu gestalten, dass für den Landgraben im Gegensatz zum Bestandsbauwerk ein offener Querschnitt zur Verfügung steht. Die Variante, das Ersatzbauwerk mittels eines überschütteten Wellstahlprofils auszuführen, ist aus Gründen des Naturschutzes somit verworfen worden.
Weiterhin steht das Gut Mönkhof nebst der Zuwegung (Hohlweg) und der Querung des Landgrabens unter Denkmalschutz. Auch aus Gründen des Denkmalschutzes ist nunmehr die neue Querung wieder als Bauwerk in Form einer Deckbrücke auszuführen, damit das Gesamtensemble in seiner Form erhalten bleibt. Ferner werden im Bauwerksbereich Gründungsteile von älteren Querungen vermutet. Diese sollen als archäologische Bodendenkmäler soweit möglich im Baugrund verbleiben.
Das Ersatzbauwerk wird nunmehr als 4,98 m breite (im Bestand 4,63 m) direkt befahrende Betonbrücke ausgeführt. Die Gründung erfolgt in Spundwandbauweise, die Handläufe der Geländer werden in Holzbauweise ausgebildet.

Bild: Längsschnitt Ersatzneubau

Bild: Querschnitt Ersatzneubau
- Anlass für diese Vorlage:
(1) Für die Projektfreigabe (Ersatzneubau BW 122 Brücke Gut Mönkhof einschl. der zugehörigen Ingenieurleistungen) werden Haushaltsmittel von insgesamt brutto 550.000 EUR benötigt.
(2) Nach § 1 Nr. 1 der am 26.03.2015 von der Bürgerschaft beschlossenen Fassung der Zuständigkeitsordnung ist eine Entscheidung des Hauptausschusses zur Projektfreigabe herbeizuführen, wenn die Gesamtkosten mehr als 175.000 EUR netto betragen, was hier der Fall ist.
- Finanzierung:
Für den Ersatzneubau ergibt sich gem. Kostenberechnung mit Stand 05/2021 ein Finanzbedarf von ca. 550.000 EUR.
Die Gesamtprojektkosten setzen sich aus den Baukosten, den Kosten für Ingenieurleistungen sowie aus den sonstigen Baunebenkosten für Ausgleichs- und Entschädigungsmaßnahmen zusammen. Die genauen Baukosten sind jedoch erst im Zuge der Vergabe der Bauleistungen bekannt.
Das Bauvorhaben ist nicht förderfähig.
Die erforderlichen Mittel in Höhe von 500.000 EUR sind im PSK 541001.763.7852000 des investiven Haushalts 2021 vorhanden.
Die bereits benötigten Haushaltsmittel für Vorleistungen und Planungsleistungen in 2020 in Höhe von 22.000 EUR wurden aus dem investiven Haushalt 2020 bereitgestellt. Über das Bereichsbudget werden die derzeit fehlenden 28.000 EUR zur Verfügung gestellt.
Die Haushaltsmittel für die Behelfsbrücke werden aus dem konsumtiven Haushalt 2020-2022 bereitgestellt, da die Behelfsbrücke eine Einsatzzeit von kleiner als einem Jahr hat. Die Baukosten für die Behelfsbrücke betragen 200.000 EUR.